EasyManua.ls Logo

Yale GDP30UX

Yale GDP30UX
100 pages
To Next Page IconTo Next Page
To Next Page IconTo Next Page
To Previous Page IconTo Previous Page
To Previous Page IconTo Previous Page
Loading...
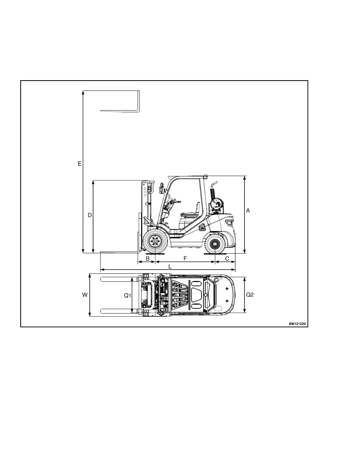
Forklift Main Technical Parameters
MAIN TECHNICAL PARAMETERS
Figure 1. Outside Drawing of Forklift Truck(LPG/DUAL)
Forklift Main Technical Parameters 8000 YRM 2199
2

Table of Contents

Related product manuals