EasyManua.ls Logo

Yamaha 67C - Page 143

Yamaha 67C
497 pages
Print Icon
To Next Page IconTo Next Page
To Next Page IconTo Next Page
To Previous Page IconTo Previous Page
To Previous Page IconTo Previous Page
Loading...
3-32
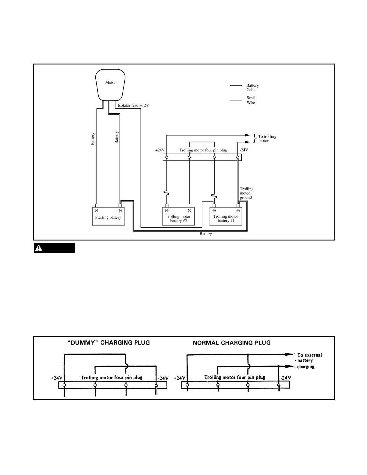
Outboard Rigging Guide - 2001 Battery Installations
Typical 24 Volt Only Trolling Motor
To reduce the risk of electrical short and fire:
The positive isolation lead must be at least
12 gauge wire.
The negative lead between batteries must
be the same size as the battery cable if the
second battery will be used for starting.
The negative lead between batteries must
be at least 12 gauge if the second battery
will be used to power a trolling motor.
NOTE: The battery isolator cannot be used on
a 24/36 volt trolling motor system. A short
could result causing a fire. Consult the trolling
motor manufacturer for wiring recommenda-
tions.
NOTE: If only two batteries are used, and one
is being used for starting, do not use the bat-
tery isolator. Damage to the electrical system of
the engine could occur.
WARNING

Table of Contents

Related product manuals