EasyManua.ls Logo

Yamato DF412/612 - Pre-Operation Procedures; Installation Precautions & Procedures

Yamato DF412/612
78 pages
To Next Page IconTo Next Page
To Next Page IconTo Next Page
To Previous Page IconTo Previous Page
To Previous Page IconTo Previous Page
Loading...
4
2. PRE-OPERATION PROCEDURES
Installation Precautions & Procedures
1. Choose an appropriate installation site.
DO NOT install unit:
where flammable or corrosive gases/fumes will be generated.
where ambient temperature will exceed 35ºC, will fall below 5ºC or will fluctuate.
in excessively humid or dusty locations.
where there is constant vibration.
where power supply is erratic.
in direct sunlight or outdoors.
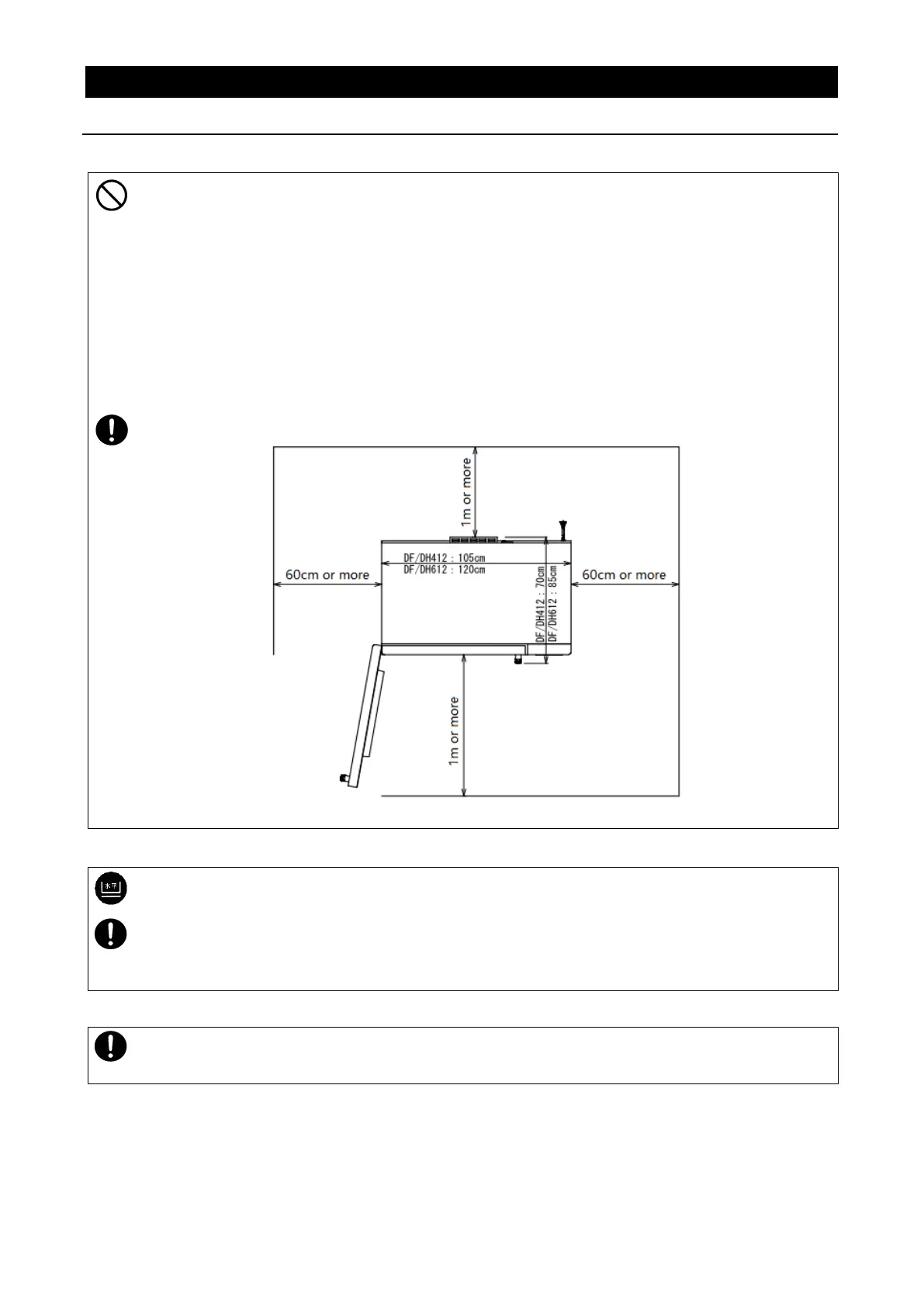
Install DF/DH series unit in a location with sufficient space, as specified as below.
2. Install on an even surface.
Install unit on level and even surface. Failure to do so may cause abnormal vibrations or noise,
resulting in possible complications and/or malfunction.
Approximate weights:
DF/DH412: approx.112kg, DF/DH612: approx.156kg
Handle unit with care. Transportation and installation should always be done by two or more
people.
3. Install in a safe location.
In the event of an earthquake or other unforeseen incident, equipment may unexpectedly shift or
fall, causing injury. Taking preventative steps to install unit in a safe location, away from room
access doors and out of harm’s way, is strongly recommended.

Related product manuals