EasyManua.ls Logo

YASKAWA CDBR Series - Page 22

YASKAWA CDBR Series
54 pages
Print Icon
To Next Page IconTo Next Page
To Next Page IconTo Next Page
To Previous Page IconTo Previous Page
To Previous Page IconTo Previous Page
Loading...
2 INSTALLATION
23
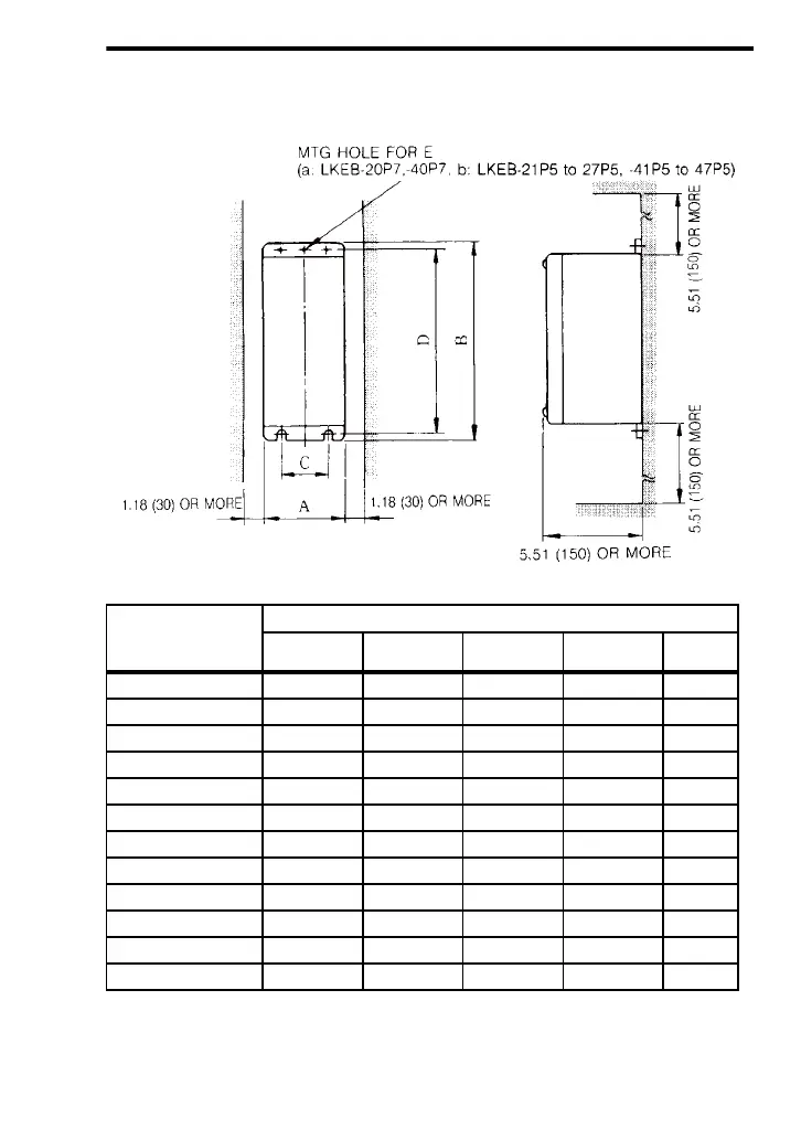
Fig. 7 Braking Resistor Unit Dimensions in inches (mm) [for 0.5 to 10HP (0.4 to
7.5kW)]
a
b
b
Braking Resistor
Unit Model
(LKEB-)
Dimensions in inches (mm)
ABCDE
20P7 4.13 (105) 10.83 (275) 1.97 (50) 10.24 (260) M5
21P5 5.12 (130) 13.78 (350) 2.95 (75) 13.19 (335) M5
22P2 5.12 (130) 13.78 (350) 2.95 (75) 13.19 (335) M5
23P7 5.12 (130) 13.78 (350) 2.95 (75) 13.19 (335) M5
25P5 9.84 (250) 13.78 (350) 7.87 (200) 13.19 (335) M6
27P5 9.84 (250) 13.78 (350) 7.87 (200) 13.19 (335) M6
40P7 4.13 (105) 10.83 (275) 1.97 (50) 10.24 (260) M5
41P5 5.12 (130) 13.78 (350) 2.95 (75) 13.19 (335) M5
42P2 5.12 (130) 13.78 (350) 2.95 (75) 13.19 (335) M5
43P7 5.12 (130) 13.78 (350) 2.95 (75) 13.19 (335) M5
45P5 9.84 (250) 13.78 (350) 7.87 (200) 13.19 (335) M6
47P5 9.84 (250) 13.78 (350) 7.87 (200) 13.19 (335) M6

Related product manuals