EasyManua.ls Logo

YASKAWA PG-X2 - Page 6

YASKAWA PG-X2
12 pages
Print Icon
To Next Page IconTo Next Page
To Next Page IconTo Next Page
To Previous Page IconTo Previous Page
To Previous Page IconTo Previous Page
Loading...
6
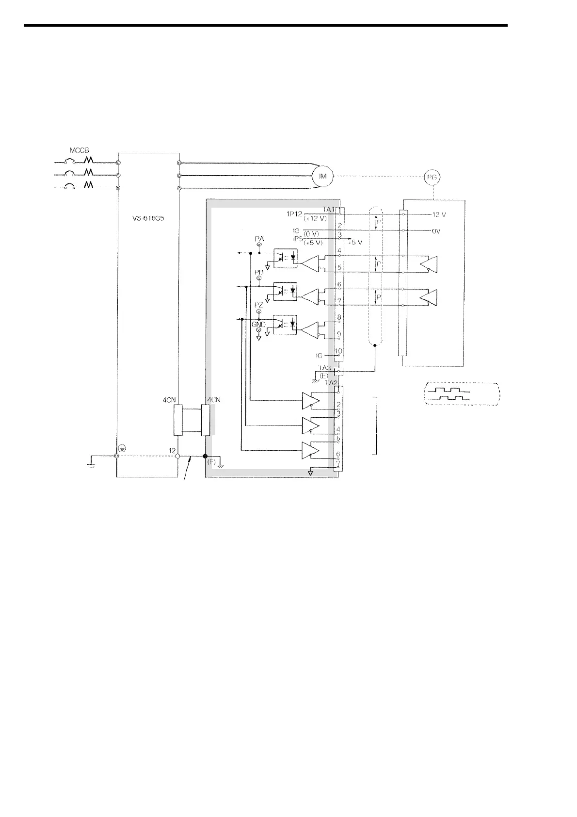
3 Interconnection
Fig. 4 shows interconnection between the inverter, PGX2, and peripheral
equipment.
Inverter
Motor
Pulse monitor outputs
Pulse A
Pulse A
Pulse B
Pulse Z
(Forward rotation)
Grounding lead wire
L1(R)
L2(S)
L3(T)
U(T1)
V(T2)
W(T3)
Pulse B
Output
*
Power supply for PG (From PG-X2)
TA1 1-2 (0V) : +12V 200mA max.
TA2 3-2 (0V): +5V 200mA max.
DO NOT use the both supplies at the same
time.
*
PG speed controller card PG-X2
Pulse A
Pulse B
Pulse Z
Fig.
4 Interconnection diagram

Related product manuals