EasyManua.ls Logo

York Predator XP150 - Page 48

York Predator XP150
54 pages
Print Icon
To Next Page IconTo Next Page
To Next Page IconTo Next Page
To Previous Page IconTo Previous Page
To Previous Page IconTo Previous Page
Loading...
528195-YTG-I-0513
48 Johnson Controls Unitary Products
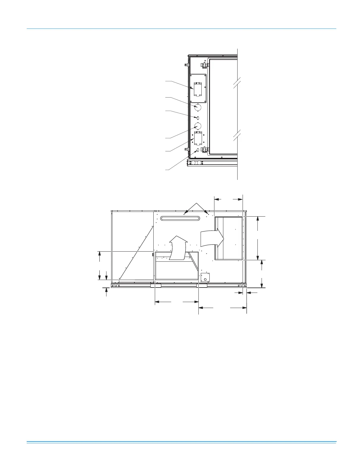
XP078-150 Unit Electrical Entry
XP078-120 Unit Side Duct Openings
Disconnect Swith Cover
Power Entry Ø 2-1/2
Control Entry Ø 7/8
Power Entry Ø 2-1/2
Convenience Outlet Cover
Convenience Outlet
Power Entry Ø 7/8
FRONT
D o t P l u g s
5 - 5 /3 2
3 1 - 1 1 /1 6
2 - 3 1 /3 2
1 8 - 1 /4
R e tu r n
A i r
S u p p l y
A i r
A
B
C
D

Related product manuals