EasyManua.ls Logo

York TL8E - Typical Suspended Furnace; Crawl Space Installation; Dimensions; Cabinet and Duct Dimensions

York TL8E
24 pages
Print Icon
To Next Page IconTo Next Page
To Next Page IconTo Next Page
To Previous Page IconTo Previous Page
To Previous Page IconTo Previous Page
Loading...
5532522-UIM-B-0619
6 Johnson Controls Ducted Systems
When moving or handling this furnace prior to installation, always leave
the doors on the furnace to provide support and to prevent damage or
warping of the cabinet. When lifting the furnace, support the ends of the
furnace rather than lifting by the cabinet flanges at the return air open-
ings (bottom or sides) or supply air opening.
It is acceptable to use the primary heat exchanger tubes as a lifting
point provided that the tubes are lifted at the front of the heat exchang-
ers where attached to the vestibule panel. Do not use the top return
bend of the heat exchangers as lifting points as the tubes may shift out
of position or their location brackets/baffles.
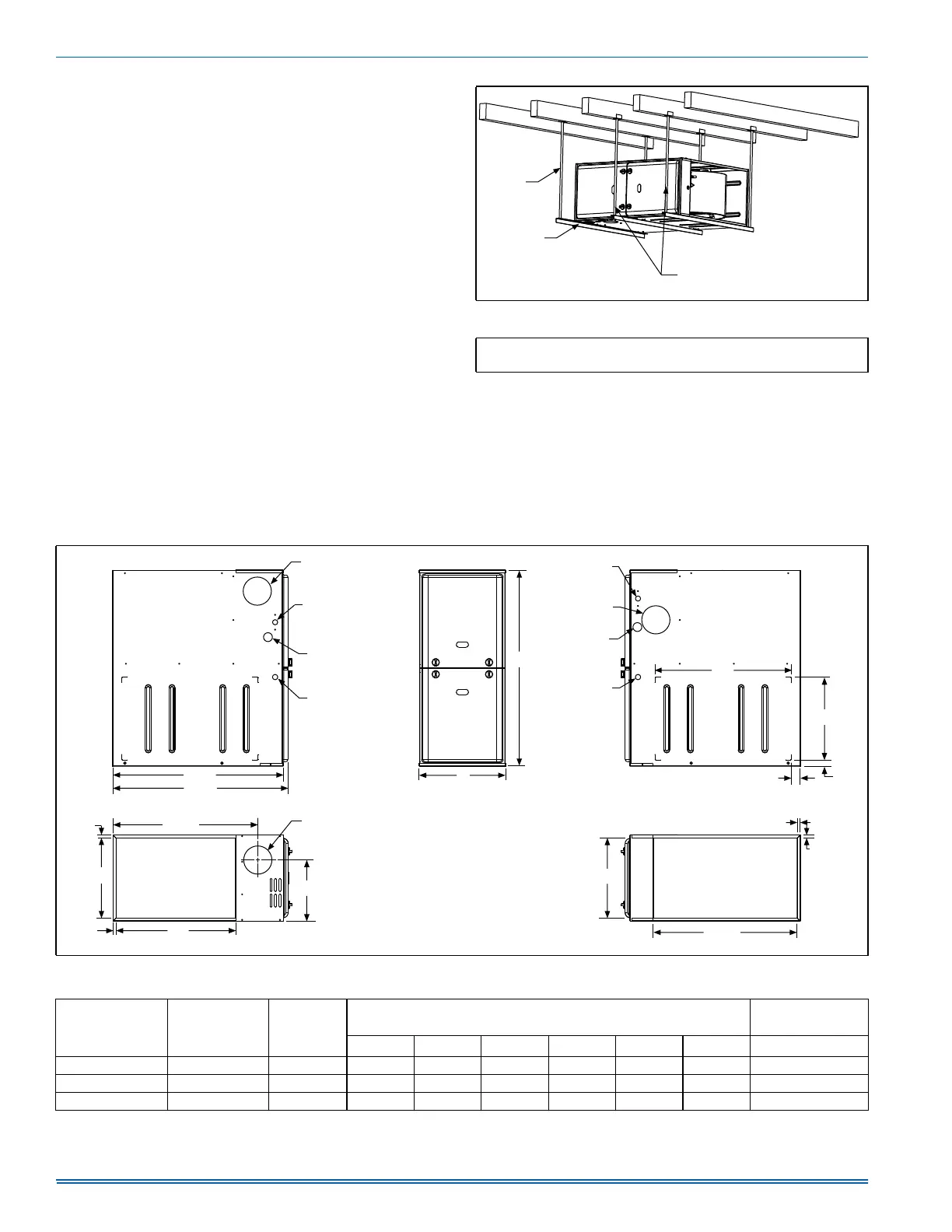
SUSPENDED FURNACE / CRAWL SPACE
INSTALLATION
The furnace can be hung from floor joists or installed on suitable blocks
or pads. Blocks or pad installations shall provide adequate height to
ensure that the unit will not be subject to water damage.
Units may also be suspended from rafters or floor joists using rods, pipe
angle supports or straps. In all cases, the furnace should be supported
with rods, straps, or angle supports at three locations to properly sup-
port the furnace. Place one support at the supply end of the furnace,
one support located approximately in the center of the furnace near the
blower shelf, and the third support should be at the return end of the fur-
nace. Maintain a 6” (15.2 cm) minimum clearance between the front of
the furnace and the support rods or straps.
All six suspension points must be level to ensure proper and quiet fur-
nace operation. When suspending the furnace, use a secure platform
constructed of plywood or other building materials secured to the floor
or ceiling joists. Refer to Figure 5 for details and additional information.
When moving or handling this furnace prior to installation it is recom-
mended to leave the doors on the furnace to provide support and to
prevent damage or warping of the cabinet. When lifting the furnace,
support the ends of the furnace rather than lifting by the cabinet flanges
at the return air openings (bottom or sides) or supply air opening.
It is acceptable to use the primary heat exchanger tubes as a lifting
point provided that the tubes are lifted at the front of the heat exchang-
ers where attached to the vestibule panel. Do not use the top return
bend of the heat exchangers as lifting points as the tubes may shift out
of position or their location brackets/baffles.
FIGURE 5: Typical Suspended Furnace / Crawl Space Installation
IMPORTANT: During installation, doors should remain on the
furnace when moving or lifting.
6XSSRUW
5RG
6XSSRUW
$QJOH[
0DLQWDLQ´PLQLPXP
FOHDUDQFHEHWZHHQVXSSRUW
URGVDQGIURQWRIIXUQDFH
$
FIGURE 6: Dimensions
Table 2: Cabinet and Duct Dimensions
BTUH (kW)
Input
Nominal
CFM (m
3
/min)
Cabinet
Size
Cabinet Dimensions (Inches)
Approximate
Operating Weights
A A (cm) B B (cm) C C (cm) Lbs
60 (17.6) 1200 (34.0) A 14 1/2 36.8 13 3/8 34.0 10.3 26.2 94
80 (23.4) 1600 (45.3) C 21 53.3 19 7/8 50.5 13.6 34.5 114
100 (29.3) 2000 (56.6) C 21 53.3 19 7/8 50.5 13.6 34.5 122
/()76,'(
5,*+76,'(
´
´
5(7851(1'
%
´
´
´
(OHFWULFDO
(QWU\
*DV3LSH
(QWU\
7KHUPRVWDW
:LULQJ
)5217
´
´
´
´
6833/<(1'
&
´
´
´
%
*DV3LSH
(QWU\
7KHUPRVWDW
:LULQJ
´
$
´
(OHFWULFDO
(QWU\
9HQW&RQQHFWLRQ
2XWOHW
9HQW
&RQQHFWLRQ
2XWOHW
´'LDPHWHU
9HQW&RQQHFWLRQ
2XWOHW
$

Related product manuals