EasyManua.ls Logo

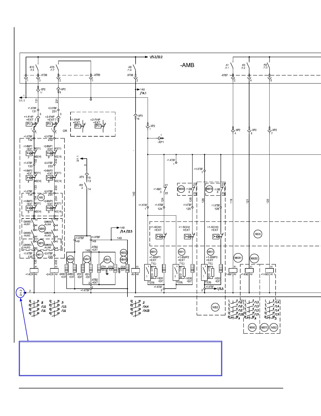
York YLAA0080 - FIGURE 15 - Elementary Wiring Diagram

York YLAA0080
178 pages
To Next Page IconTo Next Page
To Next Page IconTo Next Page
To Previous Page IconTo Previous Page
To Previous Page IconTo Previous Page
Loading...
JOHNSON CONTROLS
62
FORM 150.72-ICOM6
ISSUE DATE: 12/29/2017
SECTION 5 – TECHNICAL DATA
FIGURE 15 - ELEMENTARY WIRING DIAGRAM
035-21583-102 REV O
/'E


DWG. 2
1/2.1 What these numbers mean. Example:
1 = follow wire no.1
2. = is the DWG number on the bottom center of each page.
.1 = is the locator number across the top of the page.
At the top of the pages the numbers 1 to 11 go from left to right. Find drawing number 2 and in
column number 1 across the top of the page, locate wire number 1.

Table of Contents

Related product manuals