EasyManua.ls Logo

Zapi Chopper SEM-X - SEM-X: Cabling and Configuration; Power Diagram

Zapi Chopper SEM-X
40 pages
Print Icon
To Next Page IconTo Next Page
To Next Page IconTo Next Page
To Previous Page IconTo Previous Page
To Previous Page IconTo Previous Page
Loading...
Page 17
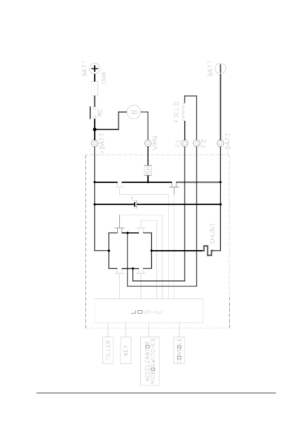
5 SEM-X: CABLING AND CONFIGURATION
5.1 POWER DIAGRAM

Related product manuals