EasyManua.ls Logo

Zero Zone RVCC30 - Low Temp

Default Icon
49 pages
Print Icon
To Next Page IconTo Next Page
To Next Page IconTo Next Page
To Previous Page IconTo Previous Page
To Previous Page IconTo Previous Page
Loading...
ELECTRICAL
LOW TEMP
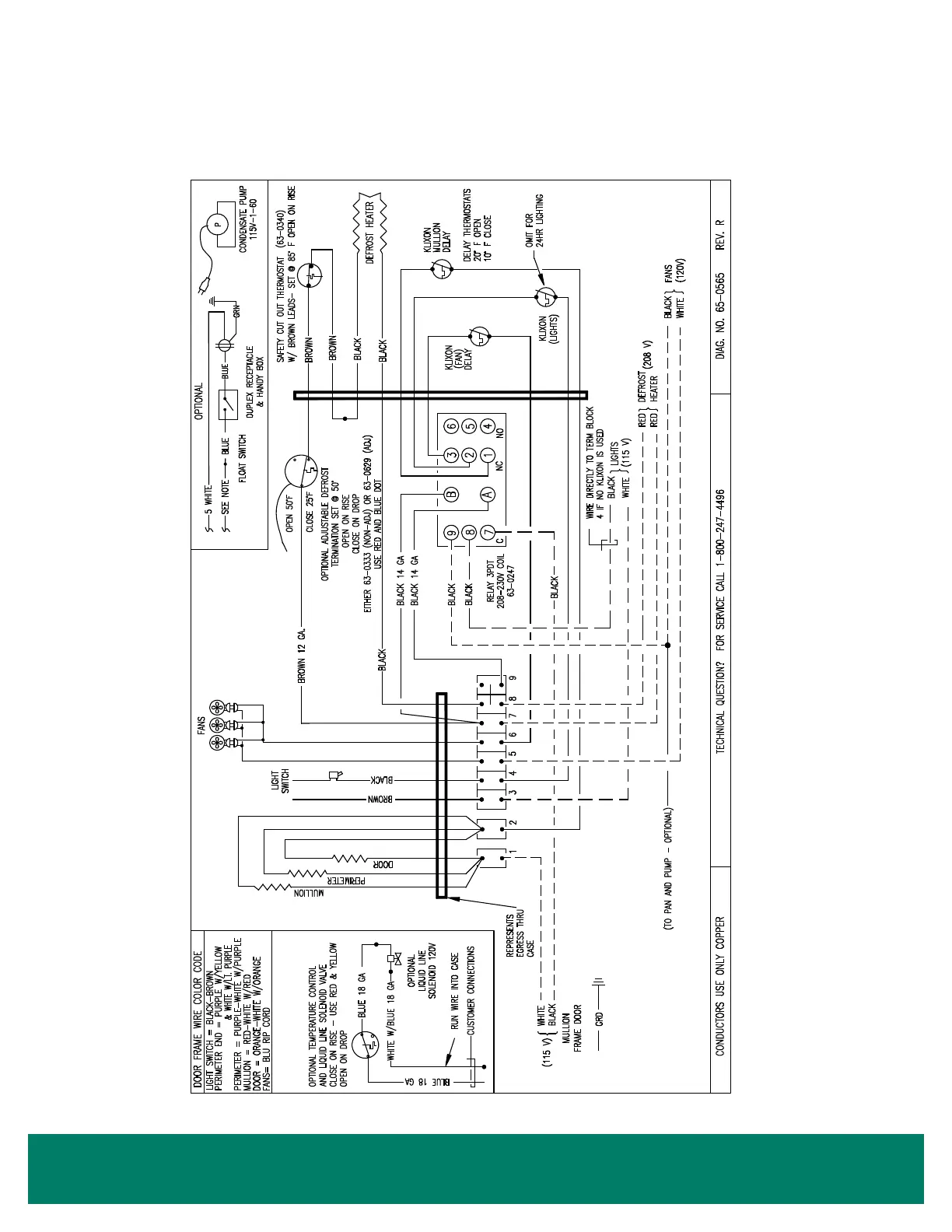
Figure 26: Electric Defrost 30" & 24" Wiring
32 • Electrical - Low Temp

Related product manuals