EasyManua.ls Logo

Zero Zone RVZC30 - Low Temperature Wiring Diagrams

Zero Zone RVZC30
49 pages
Print Icon
To Next Page IconTo Next Page
To Next Page IconTo Next Page
To Previous Page IconTo Previous Page
To Previous Page IconTo Previous Page
Loading...
ELECTRICAL
LOW TEMP
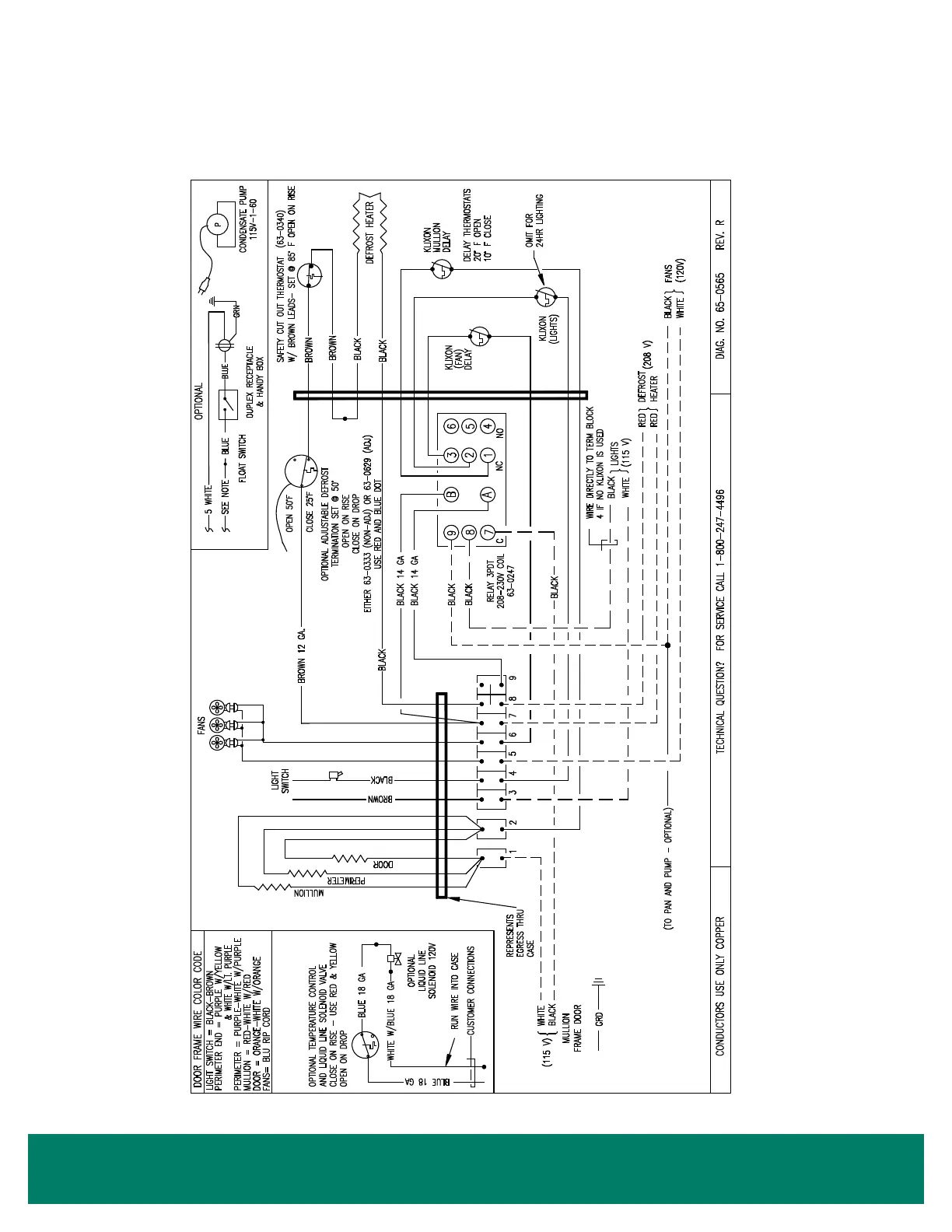
Figure 26: Electric Defrost 30" & 24" Wiring
32 • Electrical - Low Temp

Other manuals for Zero Zone RVZC30

Related product manuals