EasyManua.ls Logo

A-iPower AP5000 - How to Obtain Warranty Service

A-iPower AP5000
104 pages
Print Icon
To Next Page IconTo Next Page
To Next Page IconTo Next Page
To Previous Page IconTo Previous Page
To Previous Page IconTo Previous Page
Loading...
Page 25
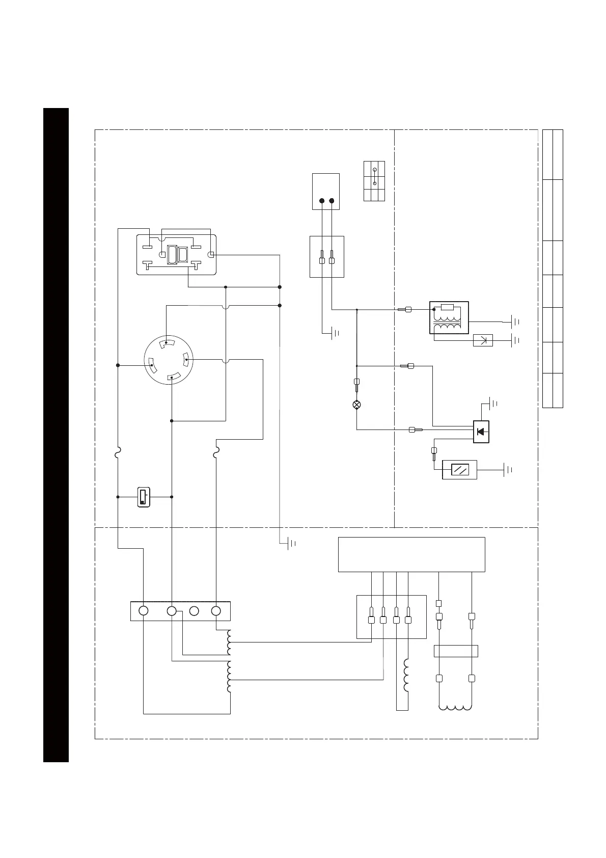
Circuit Diagram
CIRCUIT DIAGRAM
Grounding system(AC): Neutral Bonded To Frame
Model:AP5000
B:BLACK
Br:BROWN
G:GREEN
Gy:GRAY
L:BLUE
O:ORANGE
R:RED
W:WHITE
Y:YELLOW
P:PINK
B/W:BLACK/WHITE
Y/G:YELLOW/GREEN
R/W:RED/WHITE
0.0
hours
1/10
%
<*
$
5*)&,
:
%
$
/5
$
$
+
R
V
A
(
%
,*
*
:
*
/
/
5
:
,* (
2))
21
5
%
%
5
<
<
%
%
/RZRLO
VKXWGRZQ
VZLWFK
6SDUN
SOXJ
/RZRLO
LQGLFDWRU/('
/RZRLO
VKXWGRZP
PRGXOH
8QLWVZLWFK
([FLWDWLRQFRLO
5RWRU
8QLWVZLWFK
+RXUPHWHU
*
ENGINE
ALTERNATOR
CONTROL PANEL
%
*
:
*
<*
<*
<*
%
%
:
:
,JQLWLRQ
FRLO
%%
:
:
%
:
%
%
%
6WDWRUFRLO

Table of Contents

Related product manuals