EasyManua.ls Logo

A.O. Smith 400 - Page 13

A.O. Smith 400
48 pages
Print Icon
To Next Page IconTo Next Page
To Next Page IconTo Next Page
To Previous Page IconTo Previous Page
To Previous Page IconTo Previous Page
Loading...
13
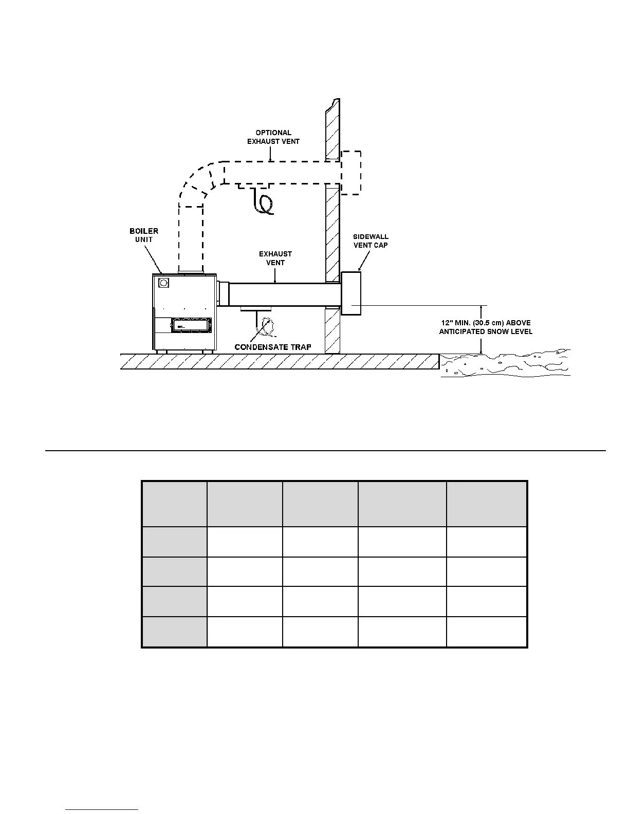
TABLE 11. STANDARD HORIZONTAL VENTING (CATEGORY III)
STANDARD VENT - HORIZONTAL (CATEGORY III)
WARNING: No substitutions of flue pipe or vent cap material are allowed. Such substitutions would jeopardize the
safety and health of inhabitants.
A maximum of two elbows can be used on inlet and outlet vent piping respectively. Each elbow is equal to 10 feet (3 m) of
straight pipe.
• Use only special gas vent pipes listed for use with Category III gas burning heaters, such as stainless steel Saf-T-Vent
by Heat Fab, Inc., available from A.O. Smith, 500 Tennessee Waltz Parkway, Ashland City, TN 37015 Phone: 1-800-433-2545
or Fax: 1-800-433-2515. Pipe joints must be positively sealed.
Figure 7.
APPLIANCE CERTIFIED EXHAUST MAXIMUM
MODEL CATEGORY VENTING VENT SIZE VENT LENGTH
MATERIAL INCHES (cm) FEET (m)
STAINLESS
STEEL
1300 STAINLESS
1500 STEEL
1850 STAINLESS
2100 STEEL
STAINLESS
STEEL
III
III
III
III
I000
2500
10”(25.4 cm)
12" (30.5 cm)
14"(35.6 cm)
16" (40.6 cm)
70' (21.3 m)
70' (21.3 m)
35' (10.7 m)
35' (10.7 m)

Related product manuals