EasyManua.ls Logo

A.O. Smith 400 - Dimensions and Capacities Data; Gas and Electrical Requirements; Dimensional Data Tables

A.O. Smith 400
48 pages
Print Icon
To Next Page IconTo Next Page
To Next Page IconTo Next Page
To Previous Page IconTo Previous Page
To Previous Page IconTo Previous Page
Loading...
2
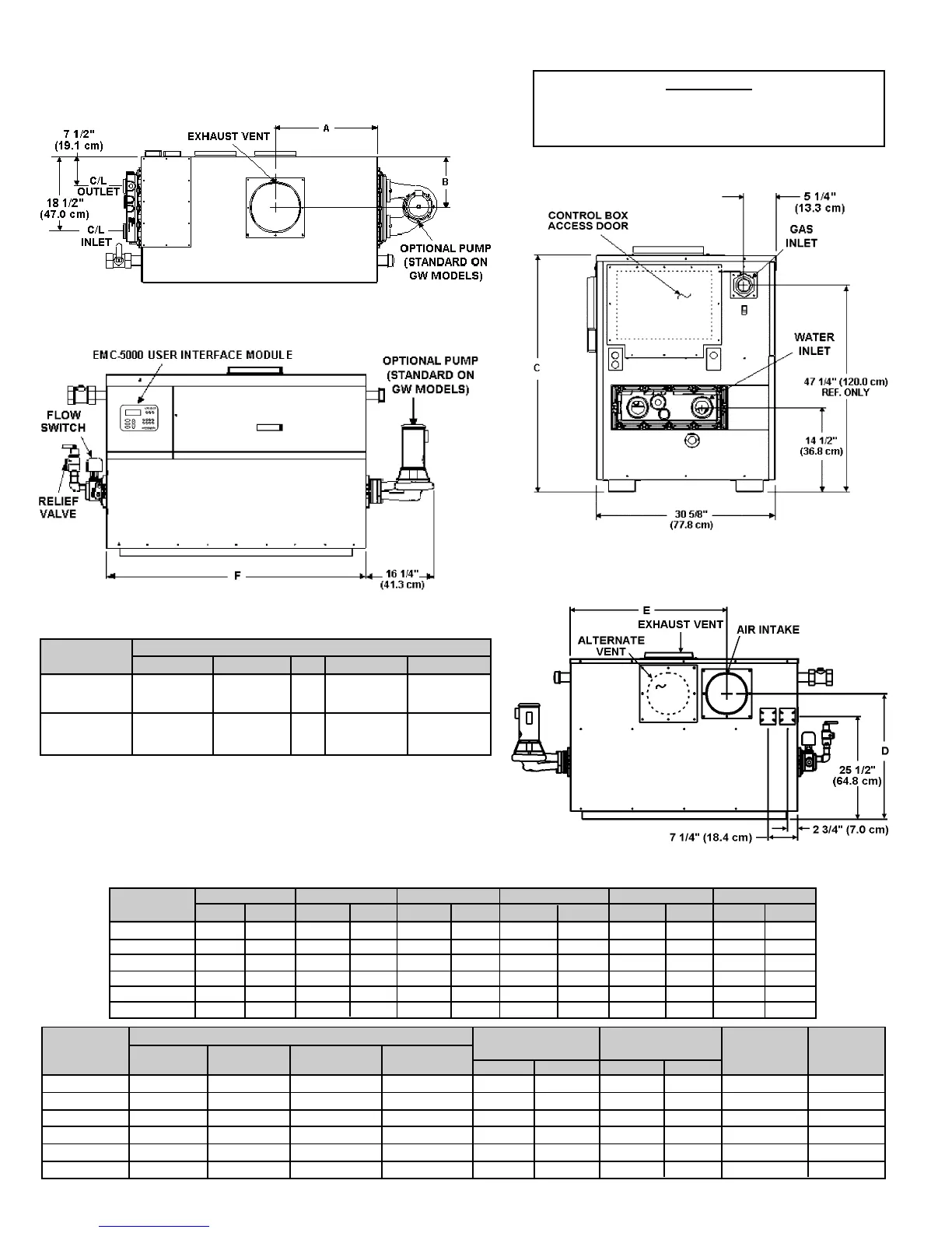
DIMENSIONS/CAPACITIES DATA
Figure 1.
IMPORTANT!
Refer to "Installation Clearances" section of manual
(page 7) for recommended service clearances prior
to boiler placement.
TOP VIEW
LEFT SIDE
TABLE 2. DIMENSIONAL DATA
AB CD EF
Model Inches cm Inches cm Inches cm Inches cm Inches cm Inches cm
GW/GB-1000 14.1 35.8 12.2 31.0 40.3 102.4 31.6 80.3 26.0 66.0 46.8 118.9
GW/GB-1300 24.8 63.0 12.2 31.0 40.3 102.4 31.6 80.3 39.3 99.8 57.3 145.5
GW/GB-1500 30.2 76.7 12.2 31.0 40.3 102.4 31.6 80.3 44.6 113.3 64.3 163.3
GW/GB-1850 27.7 70.4 11.2 28.4 43.0 109.2 32.3 82.0 44.0 111.8 78.3 198.9
GW/GB-2100 31.0 78.7 11.2 28.4 43.0 109.2 32.3 82.0 49.5 125.7 85.3 216.7
GW/GB-2500 38.1 96.8 10.5 26.7 43.0 109.2 32.3 82.0 56.5 143.5 99.3 252.2
Input Rating Exhaust Air Intake
REAR VIEW
FRONT VIEW
BTU/Hr. KW BTU/Hr. KW Vent Diameter Diameter Water Conn. Gas Inlet
Model Natural Gas Natural Gas Propane Gas Propane Gas Inches cm Inches cm Size
GW/GB-1000 990,000 289.95 990,000 289.95 10 25.4 8 20.3 2 1/2 NPT 2 NPT
GW/GB-1300 1,300,000 380.74 1,300,000 380.74 12 30.5 10 25.4 2 1/2 NPT 2 NPT
GW/GB-1500 1,500,000 439.31 1,500,000 439.31 12 30.5 10 25.4 2 1/2 NPT 2 NPT
GW/GB-1850 1,850,000 541.82 1,850,000 541.82 14 35.6 10 25.4 2 1/2 NPT 2 1/2 NPT
GW/GB-2100 2,100,000 615.04 2,100,000 615.04 14 35.6 12 30.5 2 1/2 NPT 2 1/2 NPT
GW/GB-2500 2,490,000 729.26 2,490,000 729.26 16 40.7 12 30.5 2 1/2 NPT 2 1/2 NPT
TABLE 1: GAS AND ELECTRICAL REQUIREMENT
Manifold Pressure Electrical Characteristics
MODEL Type of Gas Inches W.C. kPa Volts/Hz Amperes
GW/GB-1000
thru 2500 NATURAL 3.5 0.87 120/60 30
GW/GB-1000
thru 2500 PROPANE 10 2.49 120/60 30
All Models - Maximum Supply Pressure: 14.0 In. W.C. (3.49 kPa)
Minimum Supply Pressure Natural Gas: 6.0 In. W.C. (1.22 kPa)
Minimum Supply Pressure Propane Gas: 11.0 In. W.C. (2.74 kPa)
Minimum Pressures must be maintained during operating conditions.

Related product manuals