EasyManua.ls Logo

A.O. Smith 400 - Page 3

A.O. Smith 400
48 pages
Print Icon
To Next Page IconTo Next Page
To Next Page IconTo Next Page
To Previous Page IconTo Previous Page
To Previous Page IconTo Previous Page
Loading...
3
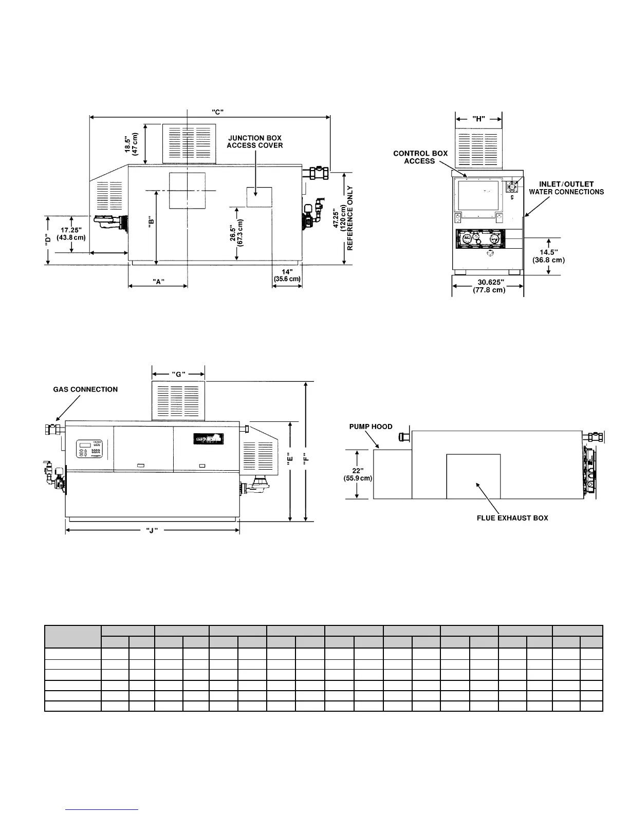
DIMENSIONS DATA FOR OUTDOOR CONFIGURATION
Figure 2.
TABLE 3. DIMENSIONAL DATA
AB C D E F G HJ
Model Inches cm Inches cm Inches cm Inches cm Inches cm Inches cm Inches cm Inches cm Inches cm
GBO/GWO-1000 14 35.5 31.6 80.3 71.8 182.4 15.5 39.4 39.75 101 58.25 148 15.9 40.83 16 40.64 46.8 118.9
GBO/GWO-1300 24.75 62.9 31.6 80.3 82 208.3 15.5 39.4 39.75 101 58.25 148 15.9 40.83 16 40.64 57.3 145.5
GBO/GWO-1500 30 76.2 31.6 80.3 89 226 15.5 39.4 39.75 101 58.25 148 15.9 40.83 16 40.64 64.3 163.3
GBO/GWO-1850 27.5 69.9 32.3 82 103 261.6 18.9 48 43 109.2 61.5 156.2 23.9 60.7 20 50.8 78.3 198.9
GBO/GWO-2100 31 78.7 32.3 82 110 279.4 18.9 48 43 109.2 61.5 156.2 23.9 60.7 20 50.8 85.3 216.7
GBO/GWO-2500 38 96.5 32.3 82 124 315 18.9 48 43 109.2 61.5 156.2 23.9 60.7 20 50.8 99.3 252.2
TOP VIEW
REAR VIEW
FRONT VIEW
LEFT SIDE

Related product manuals