EasyManua.ls Logo

A.O. Smith 400 - Preventative Maintenance; Main Burner and Flame Checks

A.O. Smith 400
48 pages
Print Icon
To Next Page IconTo Next Page
To Next Page IconTo Next Page
To Previous Page IconTo Previous Page
To Previous Page IconTo Previous Page
Loading...
44
PREVENTATIVE MAINTENANCE
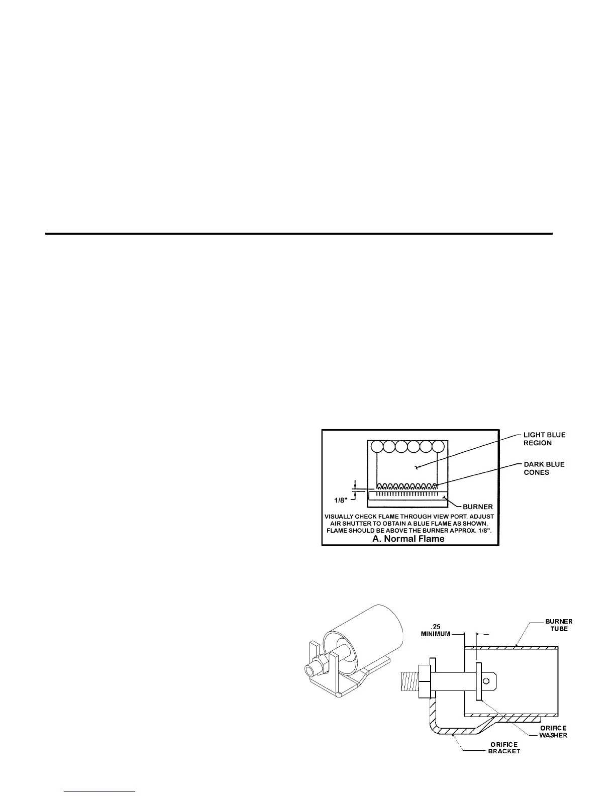
This is an induced burner and the flame is not supposed to be directly
on the burner. The flame should be just above the burner deck
approximately 1/8” and blue in color. See Figure 22.
Visually check flame characteristics through the view port located
under the left-hand header on the boiler. Figure 22 shows the
normal flame condition. Also, refer to the flame label on the unit
(adjacent to the view port).
These boilers are designed to give many years of efficient and
satisfactory service when properly operated and maintained.
To assure continued good performance, the following
recommendations are made.
The area around the unit should be kept clean and free from lint
and debris. Sweeping the floor around the boiler should be done
carefully. This will reduce the dust and dirt which may enter the burner
and heat exchanger, causing improper combustion and sooting.
MAIN BURNERS
Check main burners every three months for proper flame
characteristics. The main burner should display the following
characteristics:
Provide complete combustion of gas.
Cause rapid ignition and carry over of flame across entire burner.
Give reasonably quiet operation during initial ignition, operation
and extinction.
Cause no excessive lifting of flame from burner ports. See Figure 22.
If the preceding burner characteristics are not evident, check for
accumulation of lint or other foreign material that restricts or blocks
the air openings to the burner or boiler. To check burners:
1. Shut off all gas and electricity to unit. Allow unit to cool.
2. Remove main burners from unit.
3. Check that burner venturi and ports are free of foreign matter.
4. Clean burners with bristle brush and/or vacuum cleaner. DO NOT
distort burner ports.
5. Reinstall burners in unit. Ensure that all the screws on the
burner flange are tightened securely so that the gasket will
provide a good seal. Also, ensure that each orifice is
centered with the venturi opening of every burner. The
washer of the orifice must be inserted a minimum of 1/4"
into the burner tube. This is critical for proper operation.
See Figure 23.
6. Also check for good flow of combustion and ventilating air to
the unit.
Figure 22. Normal Flame Characteristics
Figure 23. Orifice Insertion
“Tank Probe” Tank (Remote) probe shorted or open Flashing HARD
Caused when the thermistor in the probe or the wiring is shorted or disconnected. Check the probe. Note:
the thermistor and wiring can be checked by disconnecting the probe from the CCB and reading the
resistance across the two active pins on the connector at the end of the probe cable. The value should be
approximately 10K ohms (value will change slightly with changes in temperature).
“Igniter Stg*” Igniter current is too low Flashing HARD
Caused by a low current draw problem with the igniter. This may occur if the igniter is old, damaged, or
disconnected and no longer draws the proper level of current. This condition will affect the ability of the
igniter to get hot enough to fire the gas properly. Check the igniter and its associated wiring.
“Igniter Pwr Stg*” Improper power applied to the igniter circuit Flashing HARD
Caused by improper line power being applied to the igniter circuitry. Check line connections.
Paying particular attention to the earth ground connection. Also check that line voltage does not exceed 132
vac rms.
“Igniter Hdwr Stg*” Hardware problems with igniter circuit Flashing HARD

Related product manuals