EasyManua.ls Logo

A.O. Smith 400 - Schematic Diagram; Genesis GB;GW System Schematic

A.O. Smith 400
48 pages
Print Icon
To Next Page IconTo Next Page
To Next Page IconTo Next Page
To Previous Page IconTo Previous Page
To Previous Page IconTo Previous Page
Loading...
26
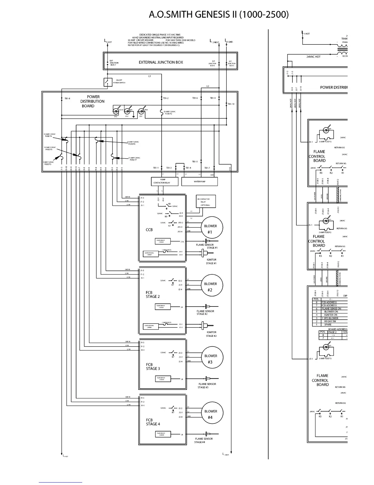
GENESIS GB/GW 1000-2500 SERIES 400 SCHEMATIC DIAGRAM
FIGURE 16.

Related product manuals