EasyManua.ls Logo

ABB ACS800-04 - Free Space Around Units with Busbars on the Long Side (Bookshelf Mounting +H354)

ABB ACS800-04
162 pages
To Next Page IconTo Next Page
To Next Page IconTo Next Page
To Previous Page IconTo Previous Page
To Previous Page IconTo Previous Page
Loading...
Planning the cabinet installation
31
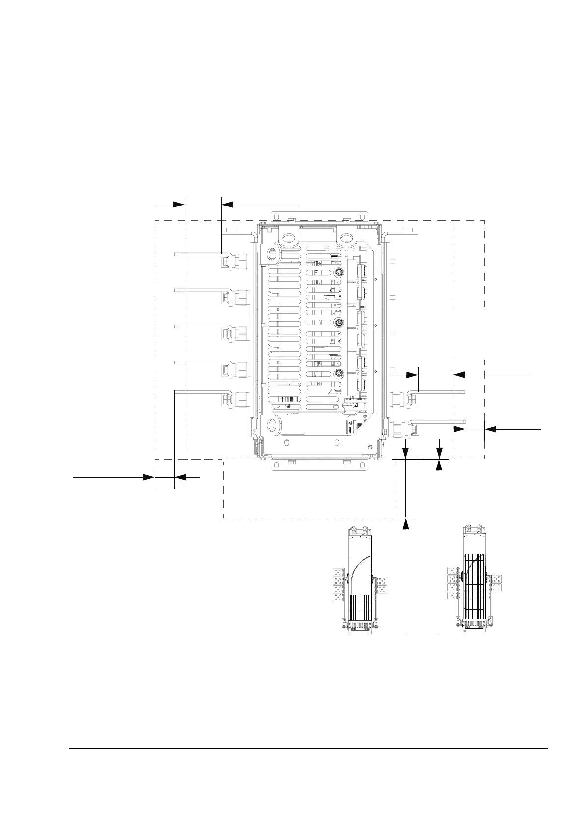
Free space around units with busbars on the long side (bookshelf mounting
+H354)
The figure below shows the required free space in a unit with motor and brake
busbars connected to the left-hand side and DC busbars to the right-hand side of the
module (+H354+H356+H362+H363). The required free space when no vertical
busbars are used is also shown.
0 mm (0 in.)
150 mm (5.91 in.)
100 mm (3.94 in.)
50 mm (1.97 in.)
100 mm (3.94 in.)
50 mm (1.97 in.)
Air inlet side
Cables connected
to the vertical
output busbar
terminals require
50 mm (1.97 in.)
free space around
the busbar
terminals for
cooling.
Cables connected to the output
busbars of the pedestal require
100 mm (3.94 in.) free space
around the busbars for cooling.
At the back no extra space is needed.
The required free space in front of the unit depends on the gratings in the cabinet
door:
0 mm (0 in.) with air inlets as high as the grating in the module [R7: 675 mm
(27 in.), R8: 1120 mm (44 in.)]
150 mm (5.91 in.) with air inlets at the lower part of the cabinet only.

Table of Contents

Other manuals for ABB ACS800-04

Related product manuals