EasyManua.ls Logo

ABB Aztec AWT440 - Page 5

ABB Aztec AWT440
20 pages
Print Icon
To Next Page IconTo Next Page
To Next Page IconTo Next Page
To Previous Page IconTo Previous Page
To Previous Page IconTo Previous Page
Loading...
CI/AWT440–EN Rev. A 5
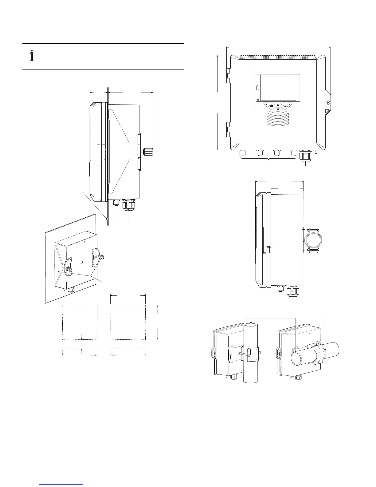
Panel mounting (optional)
Torque each panel clamp anchor screw to 0.5 to 0.6 Nm (4.42
to 5.31 lbf/in.)
Pipe mounting (optional)
IMPORTANT (NOTE)
Do not overtighten the screws.
Dimensions in mm (in.)
* To DIN43700
**150 mm (6 in.) if (optional) cable glands fitted
92
(3.6)
35
(1.4)
Panel-mount kit
Cable gland kit
(optional)
Mounting panel –
maximum thickness
6 (0.236)
Panel cut-out dimensions*
40
(1.57)
40 (1.57)**
(7.32 )
+0.04
–0
+1.1
–0
186
(7.32 )
+0.04
–0
+1.1
–0
186
Dimensions in mm (in.)
213 (8.38)
98 (3.85)
66 (2.6)
194
(7.64)
Pipe diameters:
max. 62 (2.44) / min. 45 (1.77)
Pipe-mount kit
Vertical
configuration
Horizontal
configuration
Cable gland kit
(optional)
EZLink
connectors

Related product manuals