EasyManua.ls Logo

ABB Baldor BC141 - AC Line Connection; Ground Connection

ABB Baldor BC141
20 pages
Print Icon
To Next Page IconTo Next Page
To Next Page IconTo Next Page
To Previous Page IconTo Previous Page
To Previous Page IconTo Previous Page
Loading...
2-2 MN704
The AC Line Fuse protects the control against catastrophic failure. If the AC Line Fuse blows, the control is
miswired, the motor is shorted or grounded, or the control is defective.
Fuse holders and fuses not supplied with BC142-5.
Note: Fuse each AC line conductor that is not at ground potential.
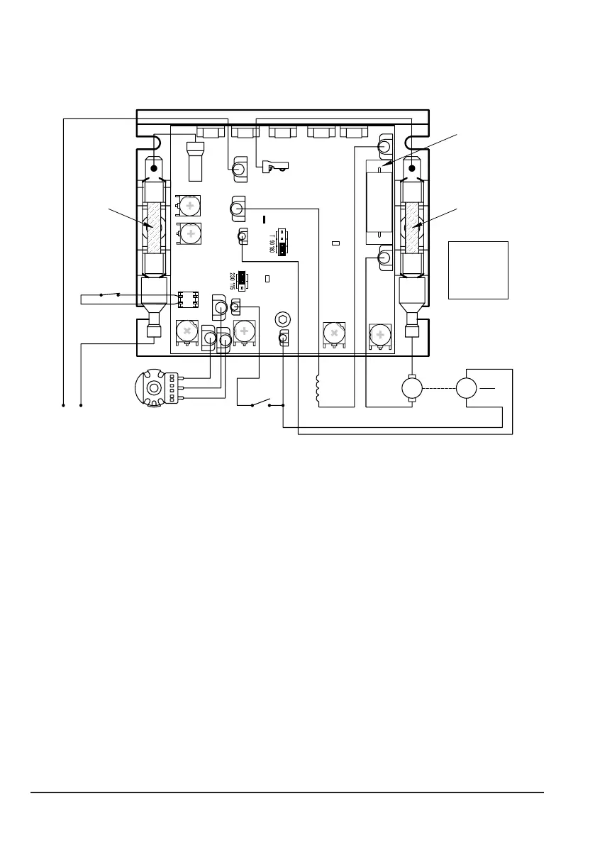
Figure 2-2 Control Layout & General Connection Diagram (Catalog No. BC142-6 Shown)
Motor ArmatureMotor Field
(S hunt Motors Only)
DC Tach- G enerator
(S et J 2 to "T " P osition)
Main S peed P otentiometerAC Line
Input
(Front View)
Inhibit S witch
(Close to S top)
(Open to R un)
E nable S witch
(Open to S top)
(Close to R un)
Line Fuse
25 Amp*
Fac tory Ins talled S upplied S eparately
* Fuse holders and fus es not supplied with B C142- 5.
Armature Fus e*
Wiper
Low
High
Hors epower R es istor®
S upplied S eparately
Plug-In
L1
B lue
A+
F-
R ed
AC CE L
DE C EL
E N
-
+
M
-
+
C ONN1
P2
G
-
+
1000
7V
PWR ON
I1
T
B
F+
A-
C L
L2
P3
MAX
P1
MIN
I2
IR
C L
Plug-In Hors epower
R es istor® and
Armature Fus e K it
supplied separately
S ee S ec tion 9.
J 1
J 2
AC Line Connection
WARNING: Electrical shock can cause serious or fatal injury. Be sure that all power is disconnected and there is
no voltage present from this equipment or equipment to which it is or will be connected. Electrical
shock can cause serious or fatal injury. Only qualified personnel should attempt the installation and
start-up procedures.
The control can be turned “on” and “off” using the AC line disconnect. Auto-Inhibit® circuitry automatically
resets critical components each time the AC line is interrupted. This, along with Acceleration Start and CL,
provides a smooth start each time the AC line is applied.
Connect the AC line to Terminals L1 (Line Fuse)* and L2, Figure 2-2. For 115VAC connect neutral to L2.
Catalog No. BC141 operates on 115 Volt AC line input only.
Catalog No. BC142 operates on 208/230 Volt AC line input only.
Catalog BC142-5 and BC142-6 operates on 115 Volt AC line input when Jumper J1 is set to the 115 position
and operates on 208/230 Volt AC line input when Jumper J1 is set to the 230 position (factory setting).
* Fuse holders and fuses not supplied with BC142-5.
Note: When using a step-down transformer (460 Volts AC to 230 Volts AC), be sure the output current
rating of the transformer is at least 3 times the current rating of the motor. Do not switch the
primary side of the transformer to disconnect power or catastrophic failure can result.
Always disconnect the control from the secondary side of the transformer.
Ground Connection
Connect the ground wire (earth) to the control chassis.

Related product manuals