EasyManua.ls Logo

ABB DCS 500 - Page 30

ABB DCS 500
31 pages
Print Icon
To Next Page IconTo Next Page
To Next Page IconTo Next Page
To Previous Page IconTo Previous Page
To Previous Page IconTo Previous Page
Loading...
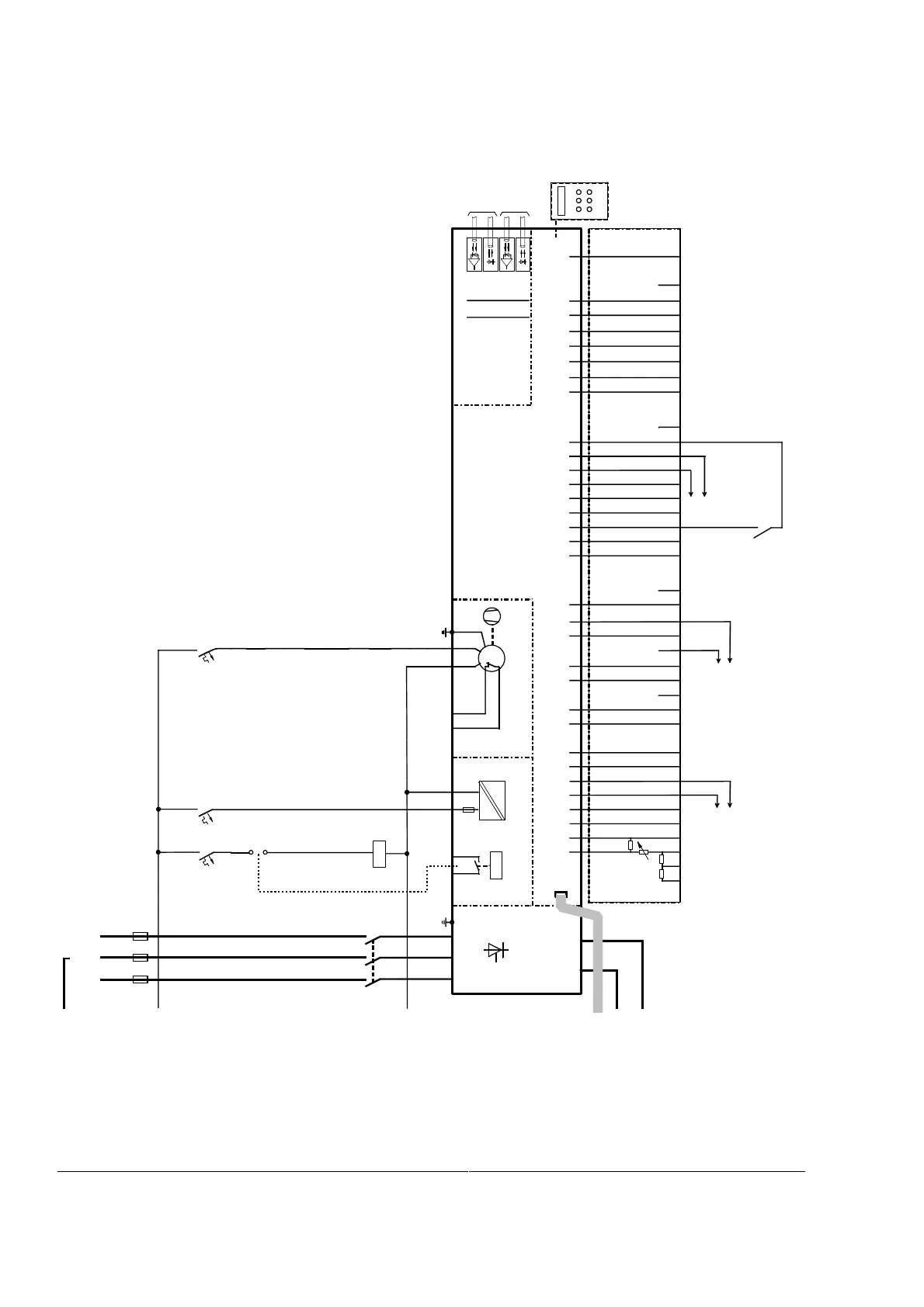
Appendix
A1 -2 DCS 500 12-Pulse Planning and Start-Up
Connection example (continued)
C
o
n
tr
o
l b
o
a
r
d
(
C
O
N
-
1
)
S
L
A
V
E
A
IT
A
C
A
I1
A
I2
A
I3
A
I4
+
1
0
V-
1
0
V
A
O
1A
O
2
I
A
C
T
X
3
3
P
A
N
E
L
C
D
P
3
1
0
I/O
b
o
a
r
d
(
IO
B
-
1
)
D
I
1
D
I
2
D
I
3
D
I
4
D
I
5
D
I
6
D
I
7
D
I
8
+
4
8
V
D
O
1D
O
2D
O
3D
O
4D
O
5D
O
6D
O
7
X
3
:
1
2
3
4
5
6
7
8
9
1
0
X
4
:
1
2
3
4
5
6
7
8
9
1
0
X
6
:
1
2
3
4
5
6
7
8
9
1
0
X
6
:
1
2
3
4
5
6
7
8
1
...1
0
0
V
0
V
0
V
0
V
0
V
_
_
_
_
_
+
+
+
+
+
K
1
1
K
1
1
9
6
:1
9
6
:2
F
6
1
1
2
F
4
1
1
2
F
5
1
1
2
X
9
6
:
D
O
8
P
o
w
e
r
s
u
p
p
ly
(
P
O
W
-
1
)
1
2
X
9
9
:
1
2
F
1
3
.1
5
A
X
2
:
4
5
X
2
:
1
2
3
M
5
5
M
~
U
1
W
1
V
1
P
E
L
1
L
2
L
3
F
1
1
K
1
1
1
3
5
2
4
6
C
o
n
v
e
r
te
r
m
o
d
u
le
X
5
:
IN
3
O
U
T
3
IN
1
O
U
T
1
V
5
V
6
V
1
V
2
C
o
m
m
u
n
ic
a
tio
n
b
o
a
r
d
(
C
O
M
-
x
)
X
1
8
:
X
6
:7
X
6
:8
X
3
:7
X
3
:8
X
4
:6
X
4
:8
1
0
0
0
V
D
1
C
1
M
a
s
t
e
r
M
a
s
t
e
r
M
a
s
t
e
r

Related product manuals