EasyManua.ls Logo

ABB EBN853 - Page 22

ABB EBN853
38 pages
Print Icon
To Next Page IconTo Next Page
To Next Page IconTo Next Page
To Previous Page IconTo Previous Page
To Previous Page IconTo Previous Page
Loading...
Electrical connection
22 EBN853, EBN861 (Contrac) 42/68-830-EN
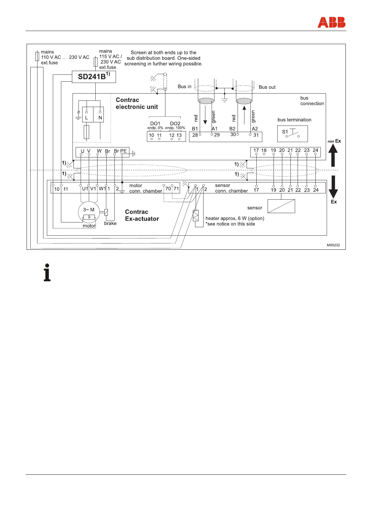
5.2.2.2 PROFIBUS DP
Fig. 13: Electrical connection: PROFIBUS DP option
Important
* For separate heat supply, protect the heater with 2 … max. 6 A medium time-lag fuses (e.g., Neozed D01CE14).
Pos: 12.20 /Elektri scher Anschluss/Aktori k/Antriebe/Lei stungselektronike n/Allgemein/Exter ne Sicherung für EBN861 @ 13\mod_1191924499046 _3101.doc @ 128869

Table of Contents

Other manuals for ABB EBN853

Related product manuals