EasyManua.ls Logo

ABB hd4 - Page 18

ABB hd4
44 pages
Print Icon
To Next Page IconTo Next Page
To Next Page IconTo Next Page
To Previous Page IconTo Previous Page
To Previous Page IconTo Previous Page
Loading...
16
20
13
10.5
266.5
306.5
8
310
310
655
15.5
32
182x
80
2.5
35
322
385
561
8
28
622
600
210210
472
598
43
618
YU
YU
Q60
578
F
F
F
35
322
385
20
13
10.5
310
266.5
20
40
20
20
62
20 40
603
18
4x
655
670 min.
420
min.
468.5
349.5
2
115
622
8
28
465
15
730
275275
137.5 137.5
708
602
748
43
728
YU
YU
F
F
F
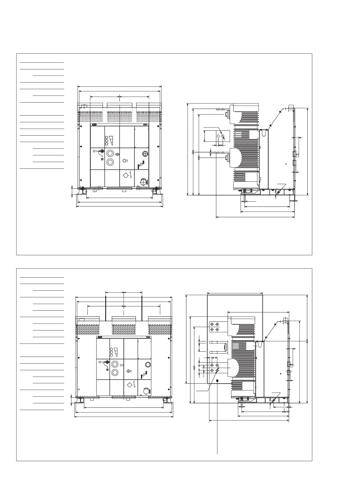
Fast effektbrytare
Fixed circuit-breakers
Skiljeväggar (Endast för 24 kV) som tillhandahålls av
kunden (specialsats kan beställas).
Insulating partitions (only for 24 kV) to be provided by
the customer (a special kit is available on request).
HD4
TN 7163
Ur 12 kV
17,5 kV
Ir 1600 A
Isc 40 kA
50 kA
HD4
TN 7163
Ur 12 kV
17,5 kV
Ir 2000 A
Isc 25 kA
31,5 kA
40 kA
50 kA
HD4
TN 7165
Ur 12 kV
17,5 kV
Ir 2500 A
3150 A
3600 A
Isc 25 kA
31,5 kA
40 kA
50 kA
HD4
TN 7165
Ur 24 kV
Ir 2500 A
3150 A
3600 A
Isc 25 kA
31,5 kA
40 kA

Table of Contents

Related product manuals