EasyManua.ls Logo

ABB hd4 - Page 19

ABB hd4
44 pages
Print Icon
To Next Page IconTo Next Page
To Next Page IconTo Next Page
To Previous Page IconTo Previous Page
To Previous Page IconTo Previous Page
Loading...
17
400 min.
670 min.
92
302.5
342.5
729.5
639.5
200
355
399
10
362
10
161
44
468.5
120
37
270
335
8
28
622
50
210
105
210
105
472
598
618
342.5
362
92
176
10
44
YU
YU
Q60
43
578
600
712
1250A
1600A
630A
22
F
22
F
22
F
10.5
13
F
F
22
F
Q60
YU
YU
Q60
342.5
10
362
10
92
302.5
639.5
729.5
161
44
355
399
468.5
120
37
270
335
8
28
620
748
728
602
43
50
275
275
708
730
342.5
362
92
176
10
44
YU
YU
1250A
1600A
630A
22
F
22
F
22
F
22
F
10.5
13
F
F
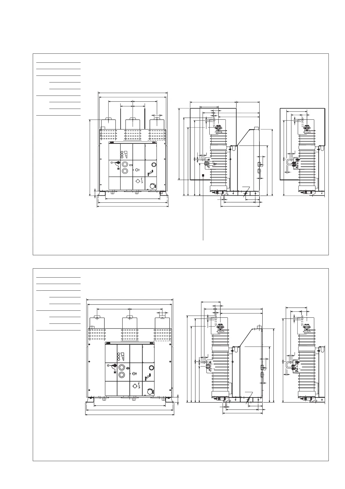
Fast effektbrytare
Fixed circuit-breakers
Skiljeväggar som tillhandahålls av kunden
(specialsats kan beställas).
Insulating partitions to be provided by the
customer (a special kit is available on request).
HD4
TN 7179
Ur 24 kV
Ir 630 A
1250 A
1600 A
Isc 16 kA
20 kA
25 kA
HD4
TN 7242
Ur 24 kV
Ir 630 A
1250 A
1600 A
Isc 16 kA
20 kA
25 kA

Table of Contents

Related product manuals