EasyManua.ls Logo

ABB hd4 - Page 29

ABB hd4
44 pages
Print Icon
To Next Page IconTo Next Page
To Next Page IconTo Next Page
To Previous Page IconTo Previous Page
To Previous Page IconTo Previous Page
Loading...
27
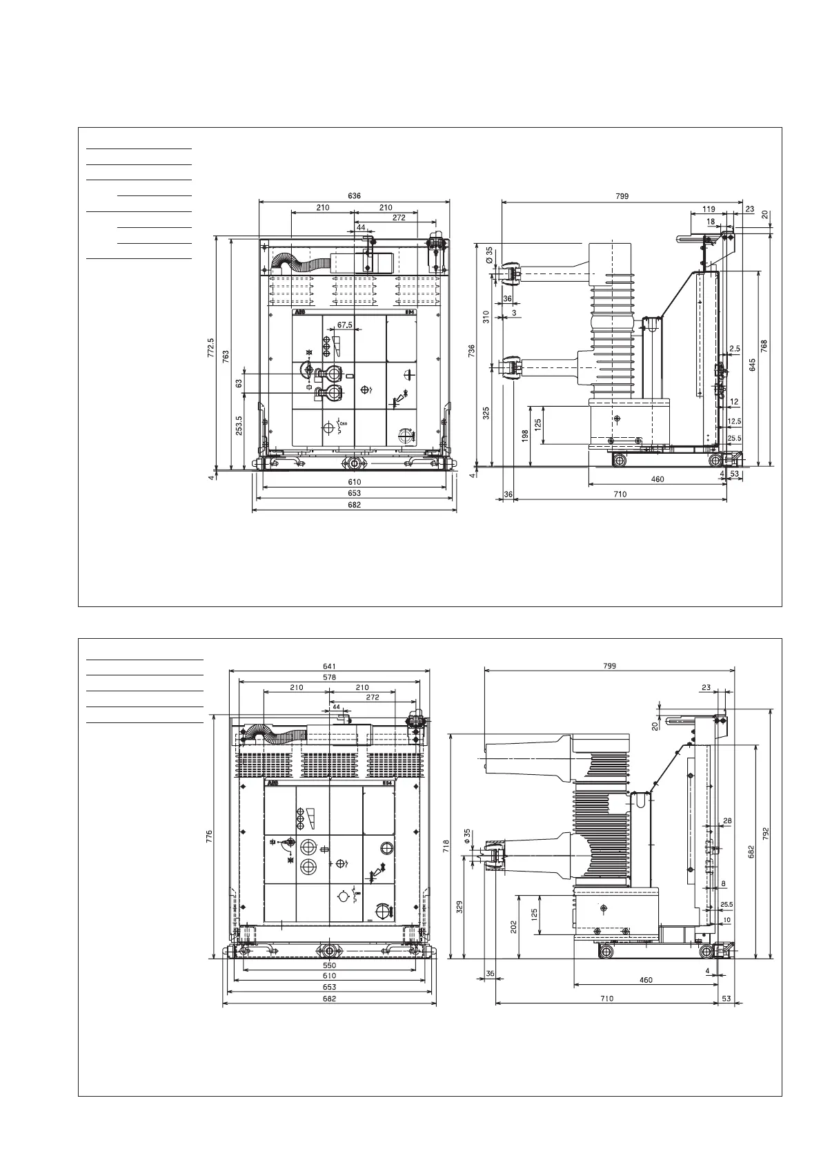
HD4/P utdragbar brytare till ställverk UniGear typ
ZS1
HD4/P withdrawable circuit-breakers
for UniGear type ZS1 switchgears
HD4/P
TN 1VCD000099
Ur 24 kV
Ir 1250 A
Isc 31,5 kA
HD4/P
TN 7354
Ur 24 kV
Ir 630 A
1250 A
Isc 16 kA (*)
20 kA
25 kA
(*) Endast för 630 A.
(*) Only for 630 A.

Table of Contents

Related product manuals