EasyManua.ls Logo

ABB hd4 - Page 30

ABB hd4
44 pages
Print Icon
To Next Page IconTo Next Page
To Next Page IconTo Next Page
To Previous Page IconTo Previous Page
To Previous Page IconTo Previous Page
Loading...
28
(*) 2500 A with forced ventilation; 2300 A with natural ventilation.
(**) Also suitable for PowerCube PB5.
(*) Also suitable for PowerCube PB5.
(*) 2 500 A med mekanisk ventilation, 2 300 A med självdragsven-
tilation.
(**) Effektbrytare anpassad för PowerCube PB5.
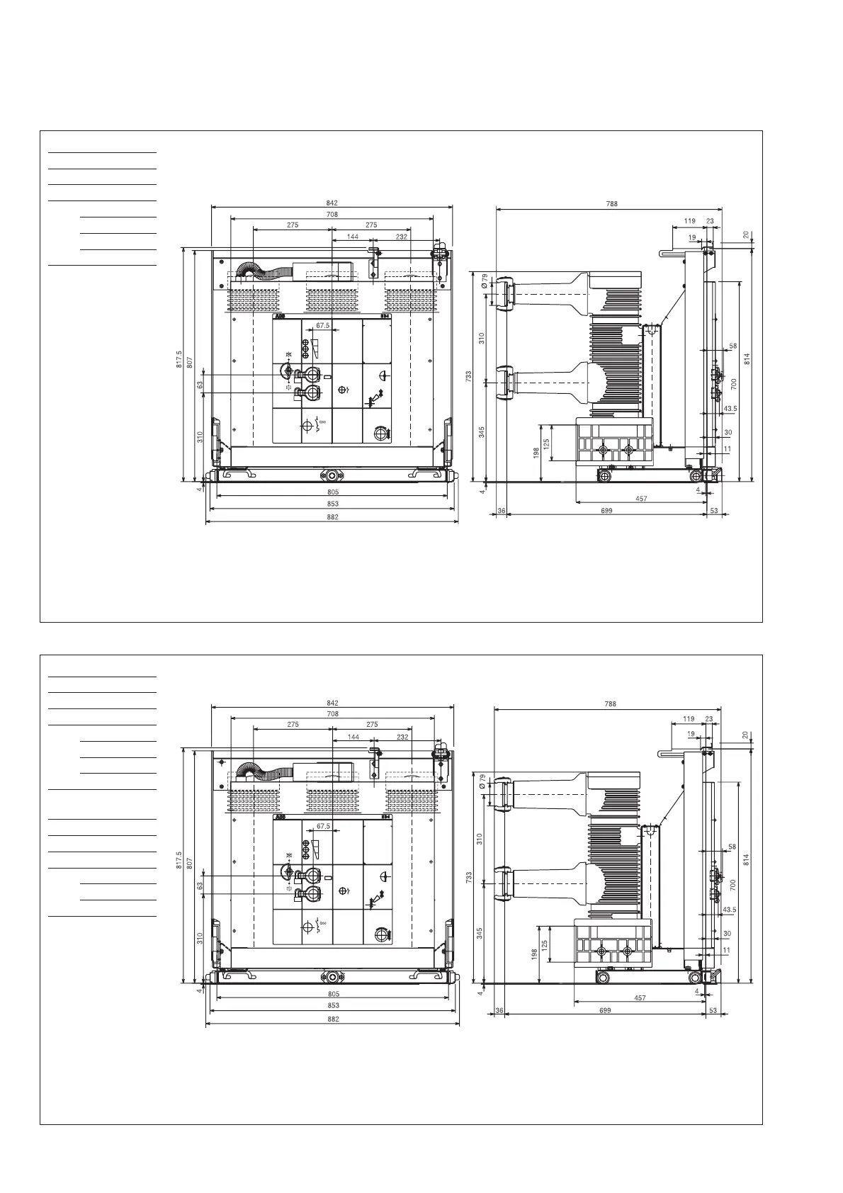
HD4/P
TN 7356 (**)
Ur 24 kV
Ir 2000 A
Isc 16 kA
20 kA
25 kA
31,5 kA
HD4/P
TN 7356 (**)
Ur 24 kV
Ir 2500 A (*)
Isc 20 kA
25 kA
31,5 kA
HD4/P
TN 7355 (*)
Ur 24 kV
Ir 1600 A
Isc 16 kA
20 kA
25 kA
31,5 kA
(*) Effektbrytare anpassad för PowerCube PB5.
HD4/P withdrawable circuit-breakers
for UniGear type ZS1 switchgears
HD4/P utdragbar brytare till ställverk
UniGear typ ZS1

Table of Contents

Related product manuals