EasyManua.ls Logo

ABB UniSec SDS - Page 36

ABB UniSec SDS
52 pages
Print Icon
To Next Page IconTo Next Page
To Next Page IconTo Next Page
To Previous Page IconTo Previous Page
To Previous Page IconTo Previous Page
Loading...
UNISEC INSTALLATION MANUAL
36
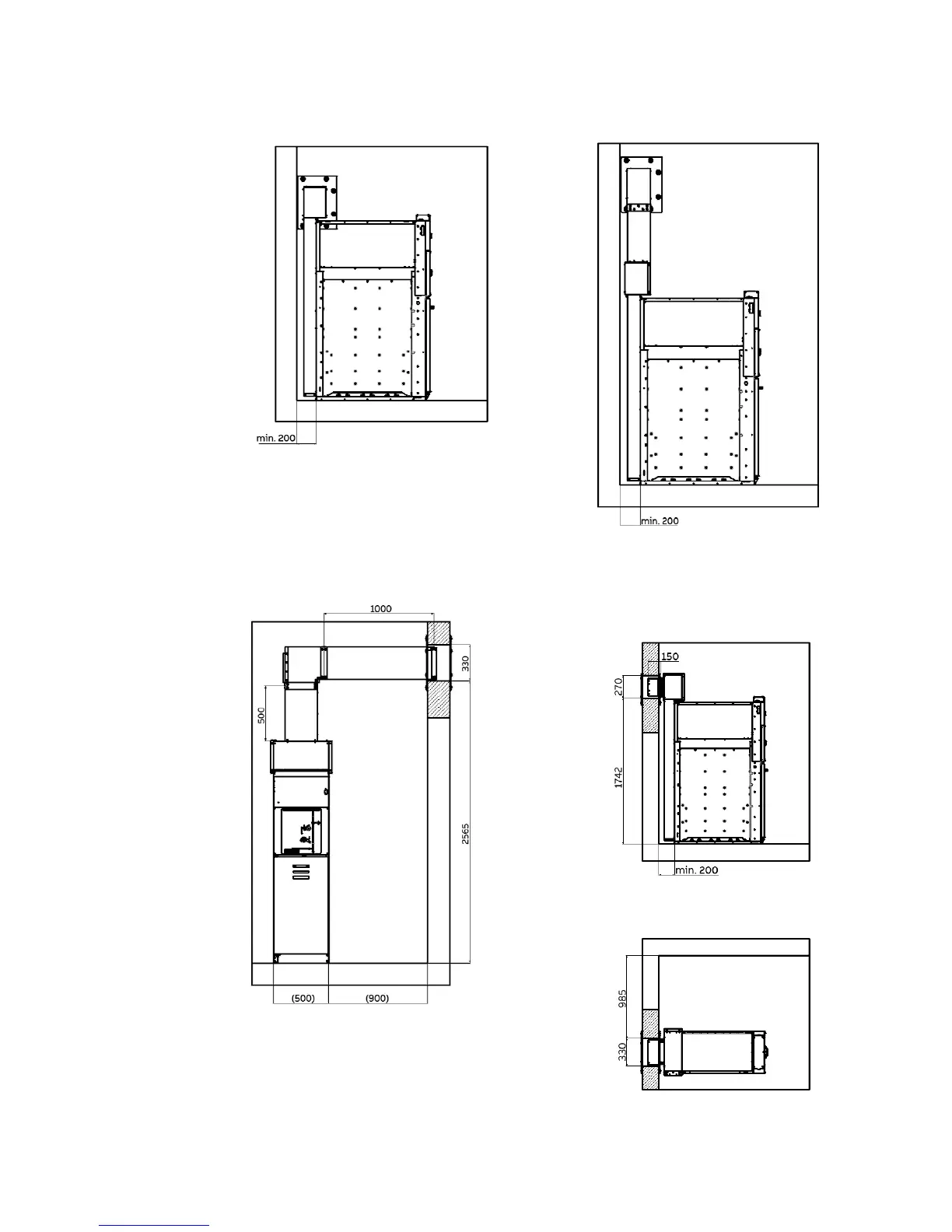
Figure 81. Side view
Figure 82. View from front
Figure 84. Side view
Figure 85. View from above
Figure 83. Side view
Example of raised lateral gas outlet
Example of rear outlet


Related product manuals