EasyManua.ls Logo

ABB VersaRupter - Page 61

ABB VersaRupter
83 pages
Print Icon
To Next Page IconTo Next Page
To Next Page IconTo Next Page
To Previous Page IconTo Previous Page
To Previous Page IconTo Previous Page
Loading...
VersaRupter MV Indoor Switch | Installation and Operation Manual 61
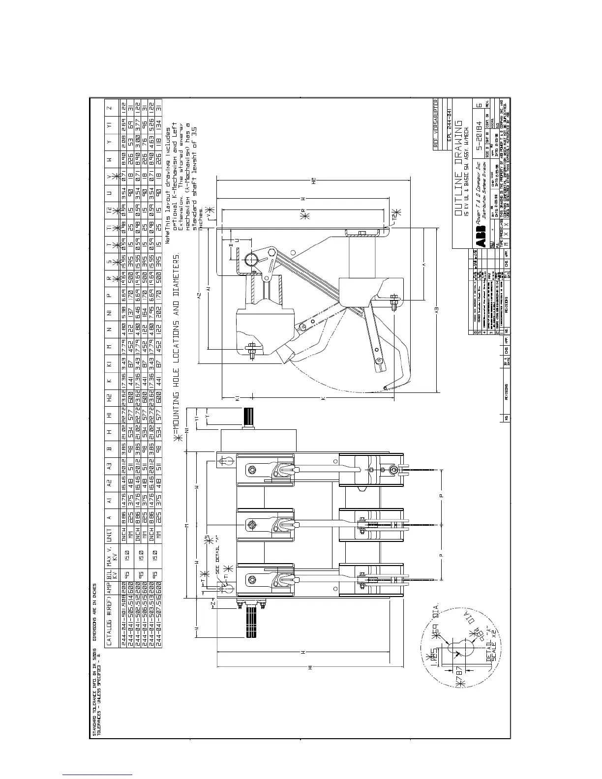
Outline Drawing
15 kV : 200/600 A : 40 kA

Related product manuals