EasyManua.ls Logo

ABB VersaRupter - Page 63

ABB VersaRupter
83 pages
Print Icon
To Next Page IconTo Next Page
To Next Page IconTo Next Page
To Previous Page IconTo Previous Page
To Previous Page IconTo Previous Page
Loading...
VersaRupter MV Indoor Switch | Installation and Operation Manual 63
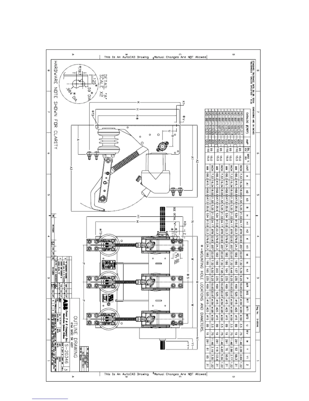
Outline Drawing
15/15.5 kV : 600/1200 A : 61 kA

Related product manuals