EasyManua.ls Logo

ACME FQ - MOTOR OPERATION AND INSTALLATION; MOTOR PROTECTION AND FEATURES; MOUNT THE MOTOR; POWER CONNECTION

ACME FQ
18 pages
Print Icon
To Next Page IconTo Next Page
To Next Page IconTo Next Page
To Previous Page IconTo Previous Page
To Previous Page IconTo Previous Page
Loading...
Thermal Protection
Motor software limits motor current to prevent an overheating condition.
If motor temperature increases above the protection limit, a thermal
switch provides nal protection to prevent a re. The thermal switch
will reset when motor temperature decreases to an acceptable level.
Built-in Protection
Built-in over current, over voltage and under voltage protection.
RPM Measurement
Motor RPM can be measured by removing the cooling fan cover on the
back of the motor and using a optical tachometer or contact. Replace
cooling fan cover when completed to prevent motor from over heating.
Reversible Rotation
The motor shaft rotation is set at factory and no adjustments are need-
ed. If a replacement motor is ordered make sure the motor rotation
matches the fans rotations. Rotation can be changed by swapping any
of the Red, Black and Blue wires connecting the control board to the
motor at terminals T1, T2 and T3.
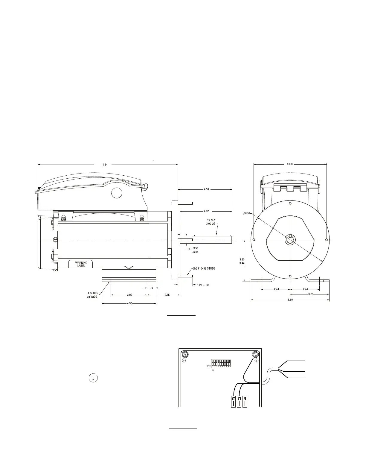
INSTALLATION
1. Wire motor in accordance with local codes. The motor can be
mounted by the feet or face. See Figure 14 for mounting hole
locations. Verify fasteners holding motor to fan are properly
secured.
2. Verify fan wheel is properly secured on motor shaft.
3. Connect the motor to AC power and ground. See Figure 15. Use
appropriate strain relief (not provided).
Figure 4 208-240VAC Power Connection to Motor
AC power
Connect it to the motor control as follows:
a. Connect L1 (White) to L1.
b. Connect L2 (Black) to L2.
c.
Connect Ground to
Use only Copper Wire for all wiring.
Green
White
230VAC Input Power
White
Green
Black
Black
P10
pin 1
Caution: Connection of either line of 208-240VAC
power to “N” will damage the unit.
14 AWG
208-240VAC Power Connection to Motor
Figure 1 Mount the Motor
Mount the Motor
208-230VAC Input Power
Page 11
FIGURE 14
FIGURE 15

Related product manuals