EasyManua.ls Logo

ADB ACE2 - Page 44

ADB ACE2
50 pages
Print Icon
To Next Page IconTo Next Page
To Next Page IconTo Next Page
To Previous Page IconTo Previous Page
To Previous Page IconTo Previous Page
Loading...
Advanced Control Equipment (ACE2)
96A0357 Rev. F
Wiring Schematics
© ADB Airfield Solutions All Rights Reserved38
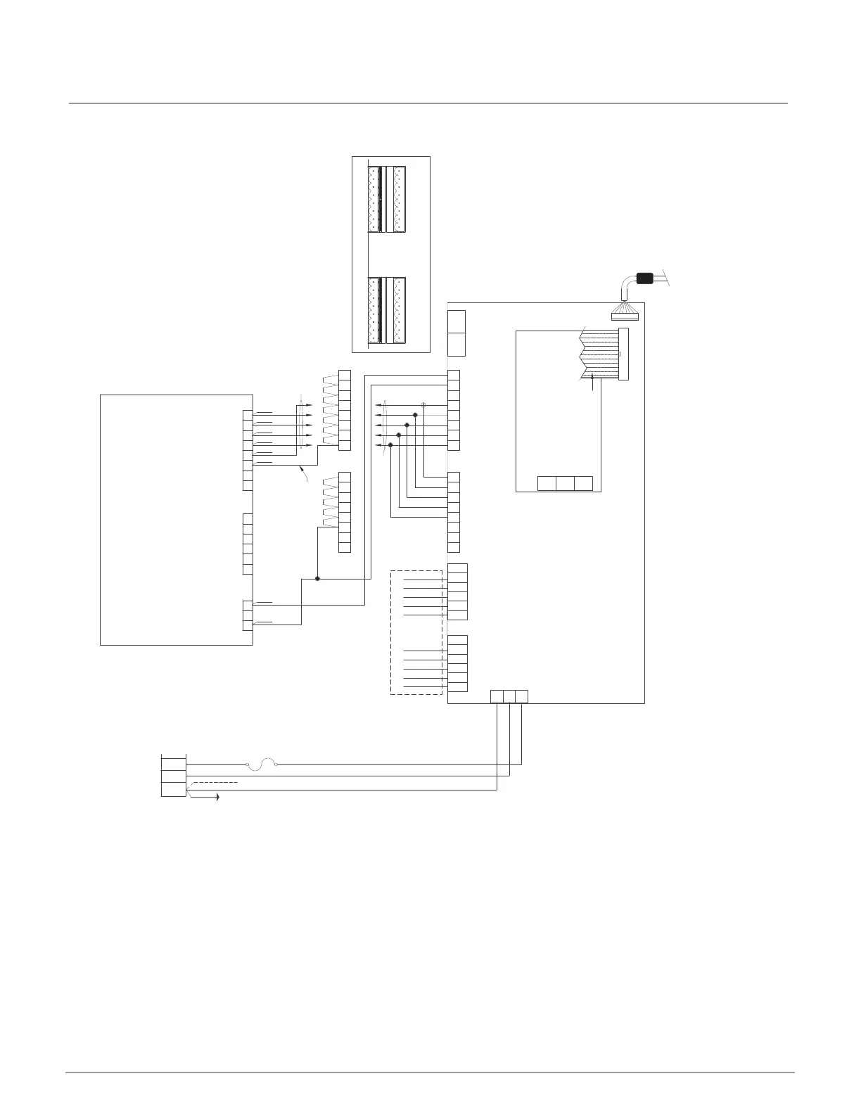
Figure 25: ACE2 PCB to URCII/I PCB for CCF 3 and 5 Step CCR
511A
511
519A
521
519
520
520A
521A
510A
518
517
516
510
518A
517A
516A
XCP
N
GND
904-IRMS
535
533
903
905
534
535
534
903
521A
520A
519A
518A
517B
521B
517A
520B
519B
518B
511B
511A
510A
PRIMARY POWER
REMOTE/LOCAL(CCI)
CC
B2/B30
B3/B100
B4
B5
CCI
TO J4-TOP
TO J1
516A
511B
J3
87
3245
6
1
J2
23
1
J1
3 & 5-STEP CCF
44A6035/1
URC II PCB ASSY.
(ONLY ACE CONNECTIONS SHOWN FOR CLARITY)
5XXA: CONTROL, 18AWG, WHT, 600V, 105C (89A0182/9).
1. WIRE SIZES:
NOTES:
5XXB: JUMPERS, 22AWG, WHT, 600V, 105C (89A0180/9).
903: GND, 18AWG, GRN/YEL, 600V, 105C (89A0163/7).
ACE 2 MAIN
U21
BLUE
U17
BLUE
U16
GREY
8576 243 1
J4-TOP (INPUT)
(COLORS IF BELDEN 9842 IS USED)
J1
12
3
4
56
24
563
1
WHT / ORG
ORG / WHT
SHIELD
WHT / BLU
BLU / WHT
ORG / WHT
WHT / ORG
SHIELD
WHT / BLU
BLU / WHT
(44A6377)
CONTROL BOARD
J8-
COM A
3
2
1
LAMPS OUT BOARD
J10
J12
2
1
1
U24
BLUE
U28
BLUE
COM B
J9-
TO EXT. SWITCH BD. J4
(44A6510/XX)
TO EXT. SWITCH BD. J1
(89A0256/XX)
REF. ONLY
CCR COMMON
"ENHANCED"
J5-TOP (OUTPUT)
J4-BOTTOM (INPUT)
78645312
J5-BOTTOM (OUTPUT)
78645312
78645312
J5
(J4, J5 FRONT VIEW)
(BOTTOM ROW)
1
J4
8
(TOP ROW)
81
REGULATOR
F6
TB1

Related product manuals