EasyManua.ls Logo

ADC AD-50 - Dryer Enclosure Requirements

ADC AD-50
66 pages
Print Icon
To Next Page IconTo Next Page
To Next Page IconTo Next Page
To Previous Page IconTo Previous Page
To Previous Page IconTo Previous Page
Loading...
113066 -17 www.adclaundry.com 11
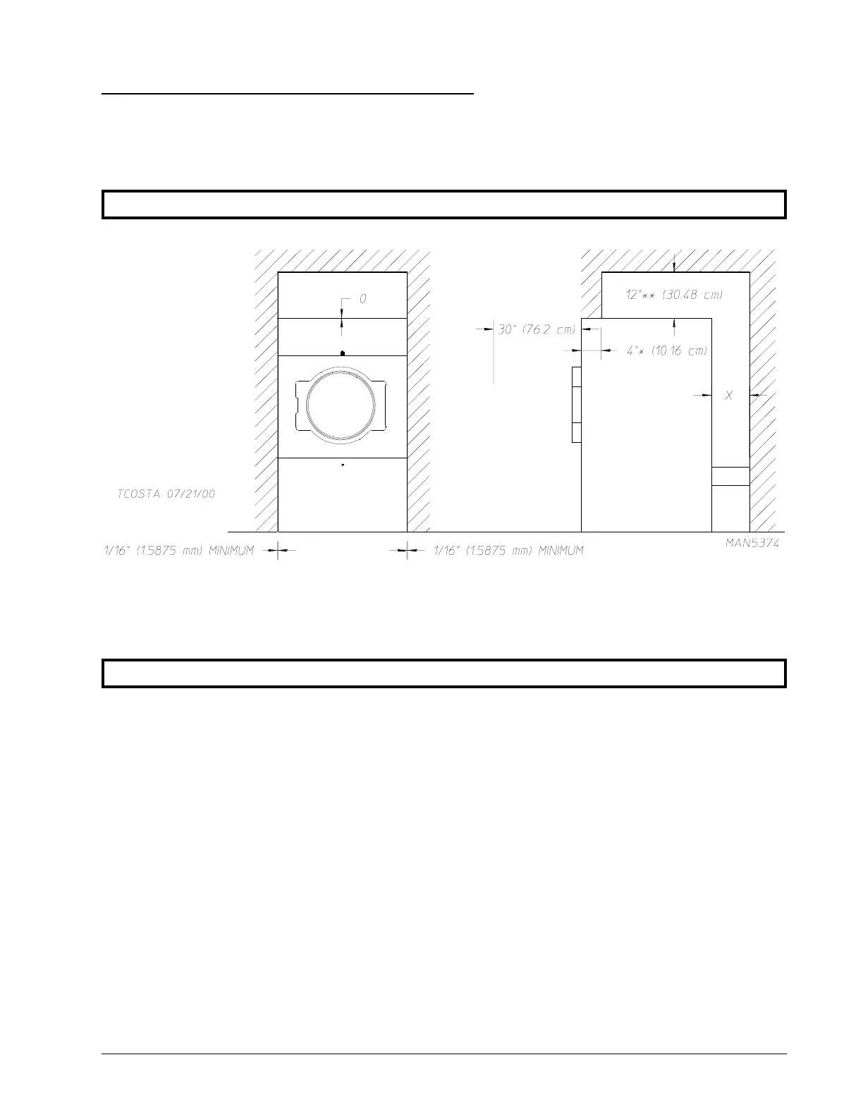
C. DRYER ENCLOSURE REQUIREMENTS
Bulkheads and partitions should be made of noncombustible materials and must be located a minimum of
12-inches (30.48 cm) above the dryers outer top; 18-inches (45.72 cm) for steam dryers, except along the front
of the dryer which may be closed if desired.
NOTE: Allowances must be made for opening the control door.
X = 12-inch (30.48 cm) minimum, 24-inches (60.96 cm) is suggested for ease of maintenance.
* 1-inch (2.54 cm) maximum for electric dryers.
** 18-inch (45.72 cm) minimum for steam dryers.
NOTE: Air considerations are important for proper and efficient operation.
Dryers may be positioned sidewall to sidewall. However, a 1/16-inch (1.5875 mm) minimum allowance must be
made for opening and closing of the control door and the lint door. It is suggested that the dryer be positioned
about 2 feet (0.61 meters) away from the nearest obstruction for ease of installation, maintenance, and service
(to be measured from the back guard). Refer to the illustration above for details.

Other manuals for ADC AD-50

Related product manuals