EasyManua.ls Logo

AEG COMPETENCE U7101-4 - Installation Instructions; Safety Warnings and Electrical Precautions; Electrical Connection Options

AEG COMPETENCE U7101-4
48 pages
Print Icon
To Next Page IconTo Next Page
To Next Page IconTo Next Page
To Previous Page IconTo Previous Page
To Previous Page IconTo Previous Page
Loading...
43
INSTALLATION INSTRUCTIONS
WARNINGS
· This appliance must be installed by a
qualified electrician/competent person. Safety
may be impaired if installation is not carried
out in accordance with these instructions.
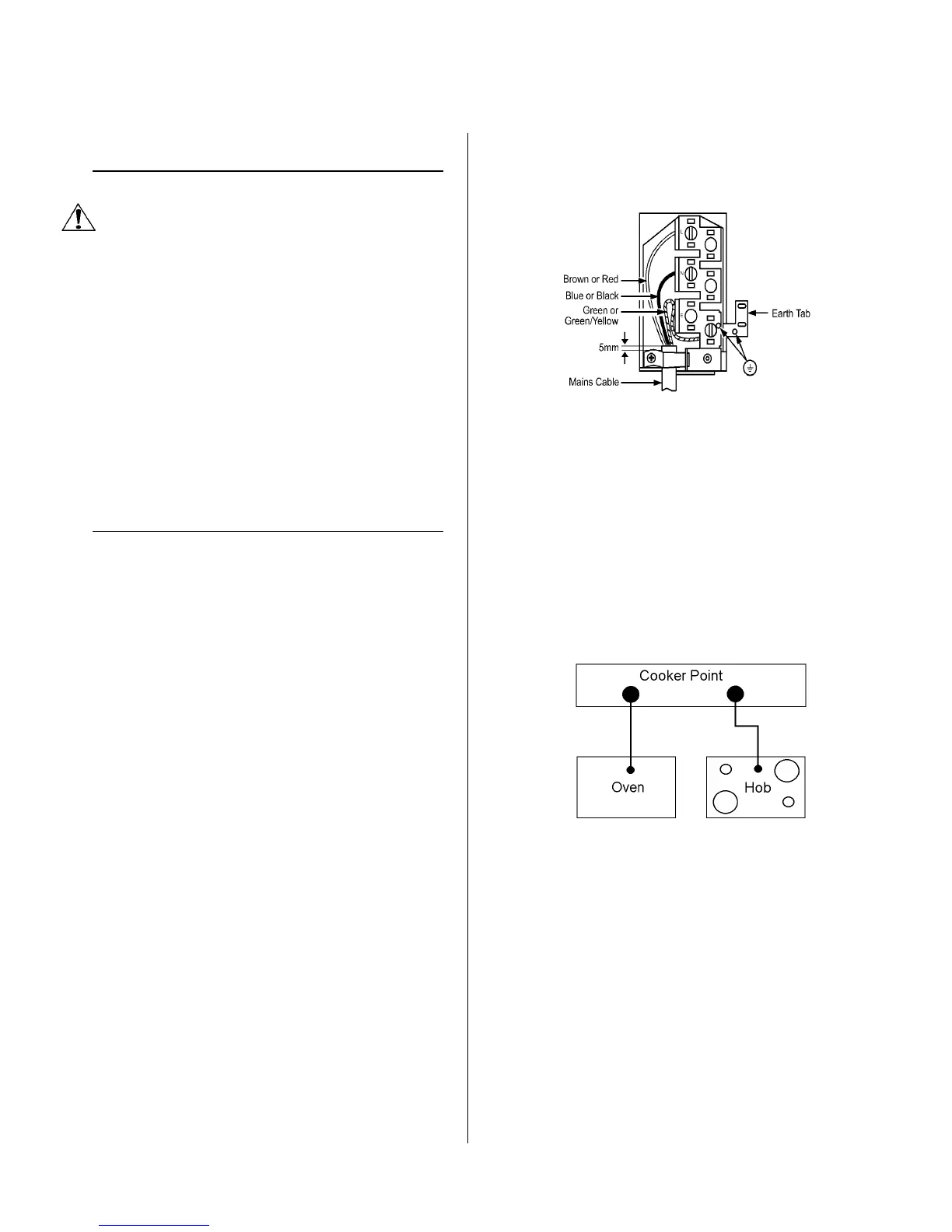
· This appliance must be earthed.
· Do not remove the screws from the earth tab
extending from the oven mains terminal block
(Fig. 1).
· Before connecting the appliance make sure
that the voltage of your electricity supply is
the same as that indicated on the rating plate.
This is situated on the lower front frame of
the appliance and can be seen upon opening
the door. Alternatively the rating plate may
also be found on the back or top of some
models (where applicable).
· Do not alter the electrical circuitry of this
appliance.
CHOICE OF ELECTRICAL CONNECTION
· The appliance should be operated using at least
6mm
2
twin core and earth PVC insulated
multicore cable. Please choose from the most
appropriate after reading the descriptions:
· By connecting the appliance to a cooker point
having a double pole isolating switch providing at
least 3mm contact separation in all poles and
protected with a fuse or miniature circuit breaker
at your mains fuse box.
· If you wish to connect an oven and a hob to a
cooker point you can, by connecting the oven
and hob separately to the cooker point. See Fig.
2.
NOTE: It is good practice to :
· Fit an Earth Leakage Circuit Breaker to your
house wiring.
· Wire your appliance to the latest IEE regulations.
Fig. 2
Fig.1

Table of Contents

Related product manuals