EasyManua.ls Logo

AERMEC ANL 041 - Page 32

AERMEC ANL 041
44 pages
Print Icon
To Next Page IconTo Next Page
To Next Page IconTo Next Page
To Previous Page IconTo Previous Page
To Previous Page IconTo Previous Page
Loading...
32
L N
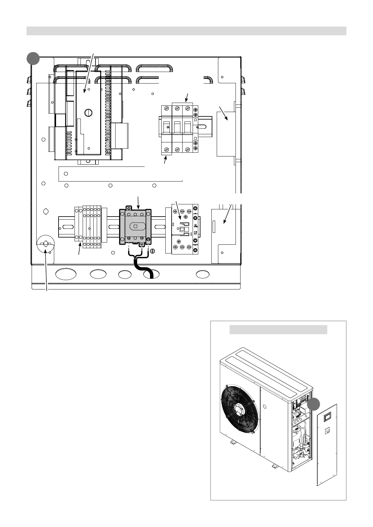
EXAMPLE LAYOUT OF THE ELECTRICAL PANEL  VERSION A - single phase power supply (230V/1/50Hz)
Position of electrical panel - version A
A
A
(*) Near the clamps of the board there is an
auxiliary control board (11 poles) connected to
the electrical panel wiring.
DCPX
(accessory)
ELECTRONIC CONTROLLER
MODUCONTROL
COMPRESSOR
THERMOMAGNETIC
SWITCH
AUXILIARY
THERMOMAGNETIC
SWITCH
MASTER
SWITCH
COMPRESSOR
CONTACTOR
TERMINAL BOARD
(*)
COMPRESSOR
CONDENSER
FAN CONDENSER
(only in
COOLING ONLY version
)

Related product manuals