EasyManua.ls Logo

AERMEC ANL 152 - Page 33

AERMEC ANL 152
44 pages
Print Icon
To Next Page IconTo Next Page
To Next Page IconTo Next Page
To Previous Page IconTo Previous Page
To Previous Page IconTo Previous Page
Loading...
33
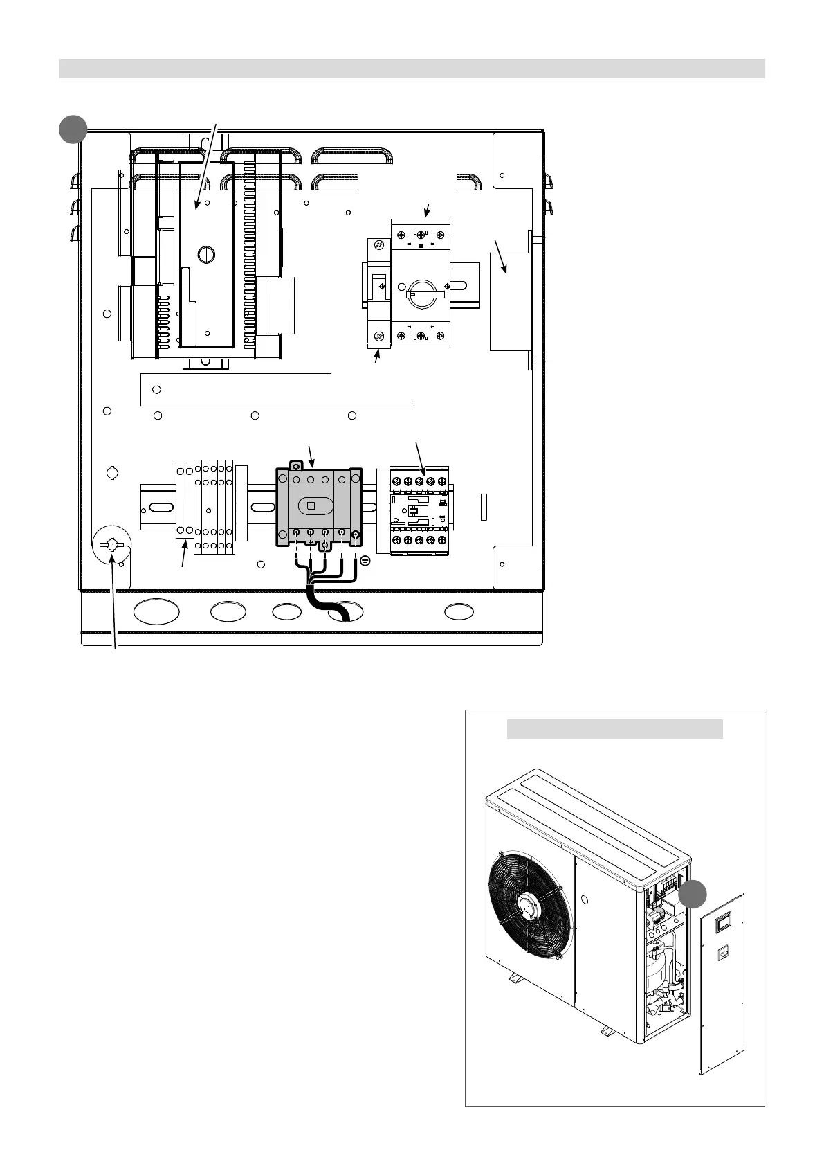
EXAMPLE LAYOUT OF THE ELECTRICAL PANEL  VERSION A - Three-phase power supply (400V/3N/50Hz)
L1 L2 L3 N
Position of electrical panel - version A
A
A
(*) Near the clamps of the board there is
an auxiliary control board (11 poles)
connected to the electrical panel wiring.
DCPX
(accessory)
ELECTRONIC CONTROLLER
MODUCONTROL
COMPRESSOR
THERMOMAGNETIC
SWITCH
MASTER
SWITCH
COMPRESSOR
CONTACTOR
TERMINAL BOARD
(*)
FAN CONDENSER
(only in
COOLING ONLY version
)
AUXILIARY
THERMOMAGNETIC
SWITCH

Other manuals for AERMEC ANL 152

Related product manuals