EasyManua.ls Logo

AERMEC NLC 0350 - Hydraulic Connection Diagrams

AERMEC NLC 0350
60 pages
Print Icon
To Next Page IconTo Next Page
To Next Page IconTo Next Page
To Previous Page IconTo Previous Page
To Previous Page IconTo Previous Page
Loading...
22.05  4037360_01 39
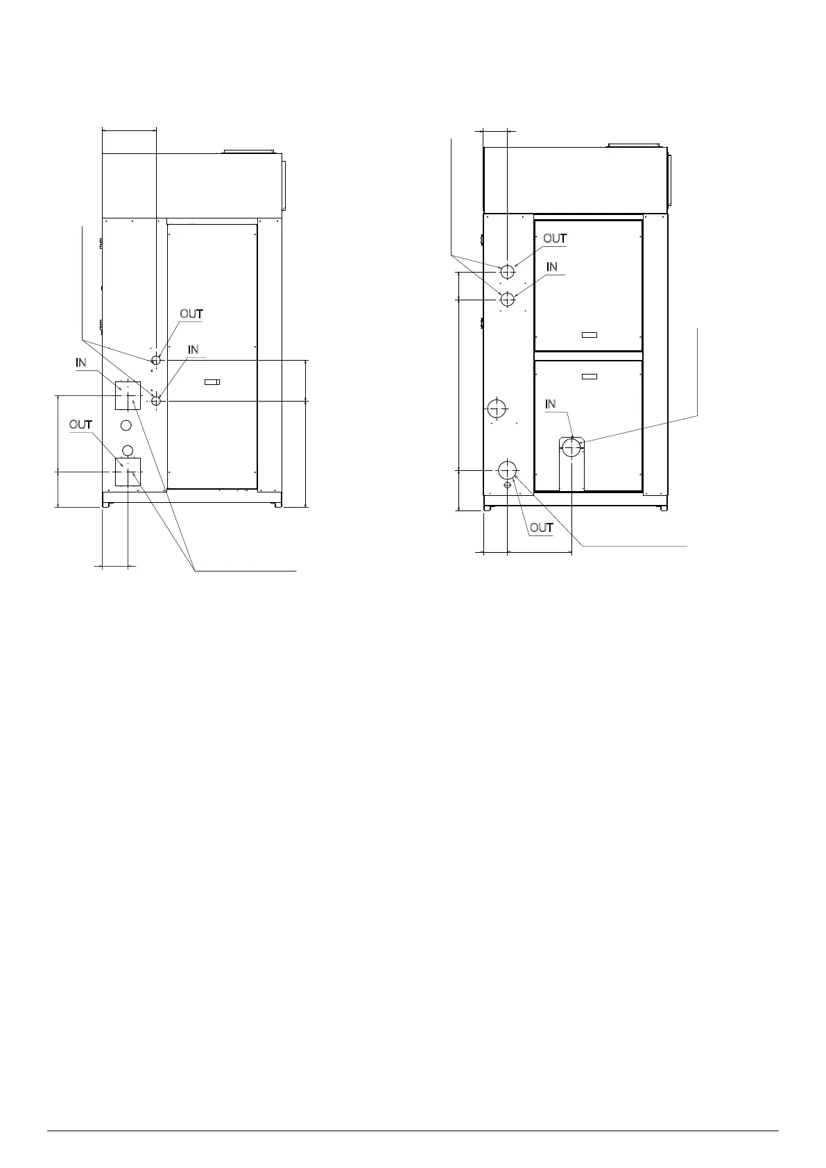
13 HYDRAULIC CONNECTIONS
0280030003300350 00
13.1
9.925.8
18.58.6
6.2
Evaporator
grooved joints - Ø 2"
Desuperheater
grooved joints - Ø 1" 1/2
0280030003300350  P1P2P3P4
5.7
6.540.39.5
5.6 15.1
Evaporator
grooved joints - Ø 2"
Pump
grooved joints - Ø 2"
Desuperheater
grooved joints - Ø 1" 1/2

Table of Contents

Related product manuals