EasyManua.ls Logo

AERMEC NXW0500 - Page 17

AERMEC NXW0500
40 pages
Print Icon
To Next Page IconTo Next Page
To Next Page IconTo Next Page
To Previous Page IconTo Previous Page
To Previous Page IconTo Previous Page
Loading...
17
INXWPY. 1610. 4438880_01
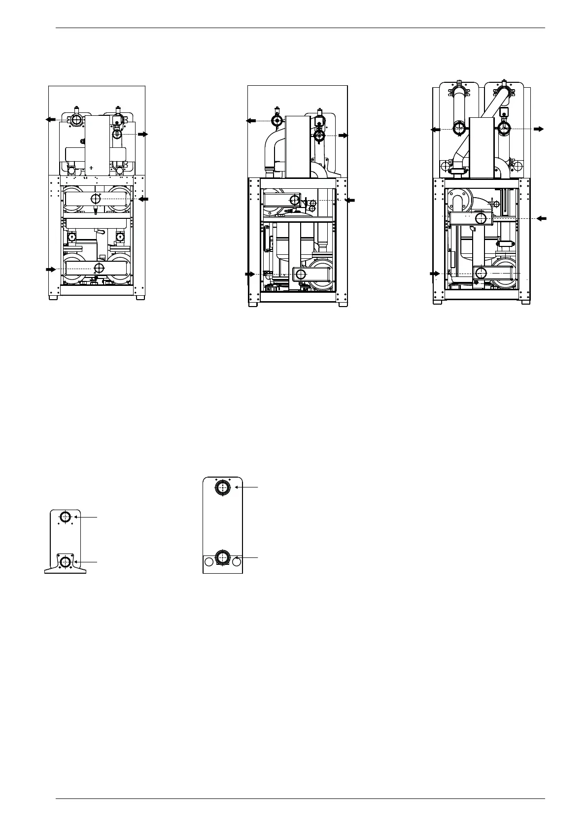
NXW Modello “H” Inversione Lato Gas
EV
EV
EV
EV
EV
EV
500 ÷ 700 [H] 750 ÷ 800 [H]
900 ÷ 1650 [H]
IN
IN
OUT
OUT
IN
OUT
CN
CN
CN
CN
CN
CN
OUT
IN
OUT
IN
IN
OUT
Legenda
EV = Evaporatore
CN = Condensatore
Attacchi Idraulici (Victaulic)
Ø 2”1/2 (76,1mm)
Ø 2”1/2 (76,1mm)
Ø 3” (88,9mm)
NXW1650
Ø 4” (114,3mm)
Ø 3” (88,9mm)
NXW1650
Ø 4” (114,3mm)
NXW - Model “H” With Gas Cycle Inversion (Cooling Mode) -with pump
Key
EV = Evaporator
CN = Condenser
Hydraulic Connection (Victaulic)

Related product manuals