EasyManua.ls Logo

AERMEC NXW0500 - Antivibrant Mouth Position(Avx)

AERMEC NXW0500
40 pages
Print Icon
To Next Page IconTo Next Page
To Next Page IconTo Next Page
To Previous Page IconTo Previous Page
To Previous Page IconTo Previous Page
Loading...
18
INXWPY. 1610. 4438880_01
7. ANTIVIBRANT MOUTH POSITIONAVX
C
D
C
D
C
D
C
D
A B A
A AB
(1)
B
(2)
A A
A AB
300mm
Ø18
Ø18
Ø18
Ø18
300mm
300mm
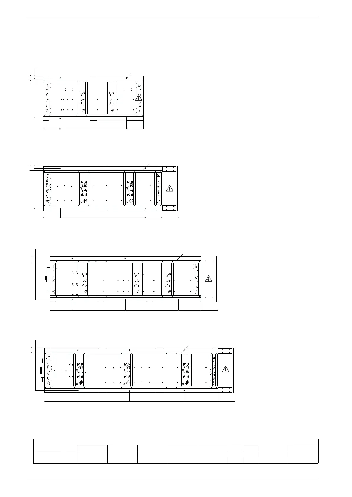
NXW 500 ÷ 700 Modello “°” - “H” Senza Gruppo Idronico
NXW 500 ÷ 700 Modello “°” - “H” Con Gruppo Idronico
NXW 750 ÷ 1650 Modello “°” - “H” Con Gruppo Idronico
NXW 750 ÷ 1650 Modello “°” - “H” Senza Gruppo Idronico
B
(1)
B
(2)
724mm724mm724mm724mm
MODEL VERS.
Without pump With pump
A B C D A B
(1)
B
(2)
C D
500 ÷ 700 ° - H 300 1190 70 35 390 932 932 70 35
750 ÷ 1650 ° - H 300 1514 70 35 600 925 979 925 35
NXW 500 ÷ 700 Model “°” - “H” Without pump
NXW 500 ÷ 700 Model “°” - “H” With pump
NXW 750 ÷ 1650 Model “°” - “H” With pump
NXW 750 ÷ 1650 Model “°” - “H” Without pump

Related product manuals