EasyManua.ls Logo

AGA TC3 - Circuit Diagram AGA TC3; Electrical Wiring Diagram

AGA TC3
48 pages
Print Icon
To Next Page IconTo Next Page
To Next Page IconTo Next Page
To Previous Page IconTo Previous Page
To Previous Page IconTo Previous Page
Loading...
34
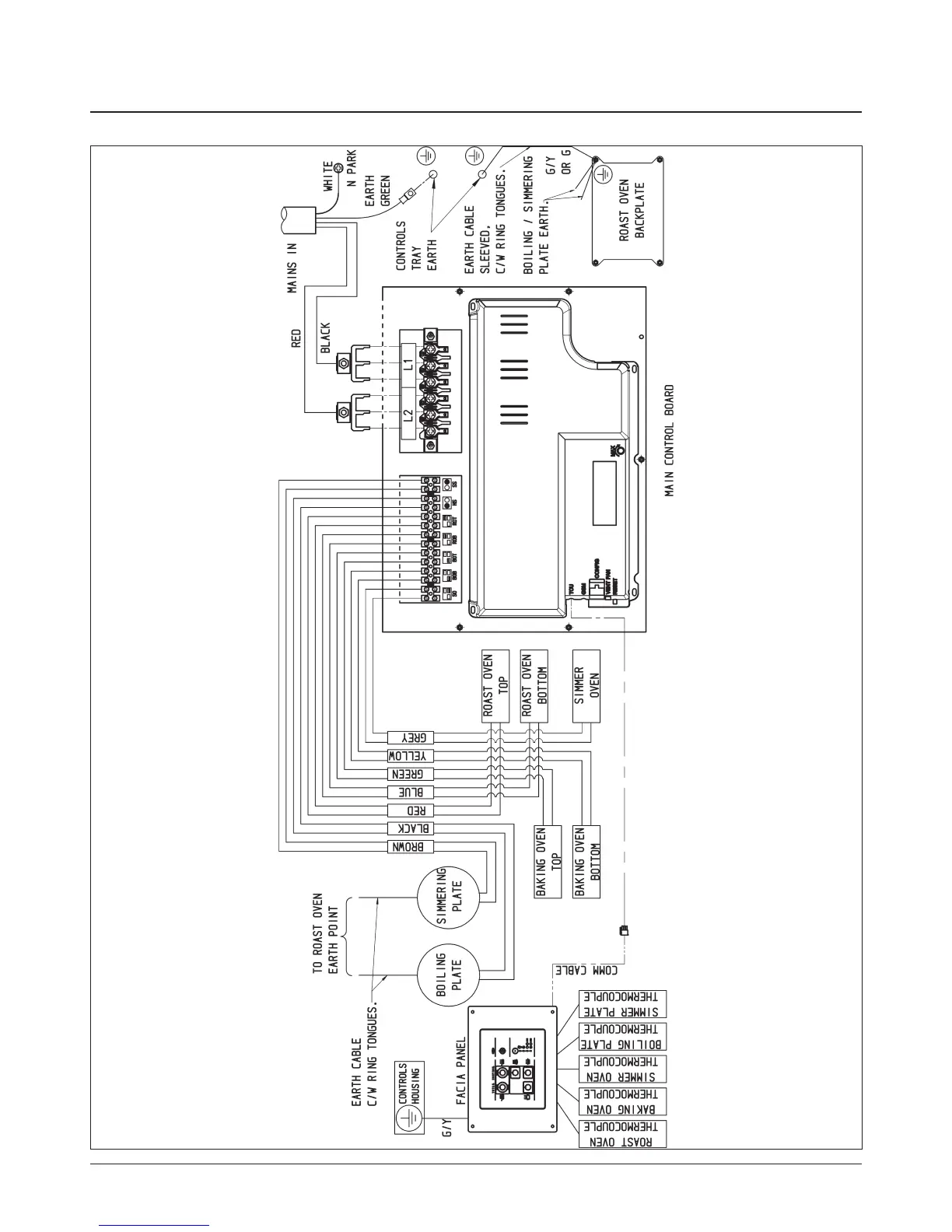
14. Circuit Diagram AGA TC3
DESN 517484

Other manuals for AGA TC3

Related product manuals