EasyManua.ls Logo

Agilent Technologies 6624A - General Information; Safety Considerations

Agilent Technologies 6624A
14 pages
Print Icon
To Next Page IconTo Next Page
To Next Page IconTo Next Page
To Previous Page IconTo Previous Page
To Previous Page IconTo Previous Page
Loading...
7
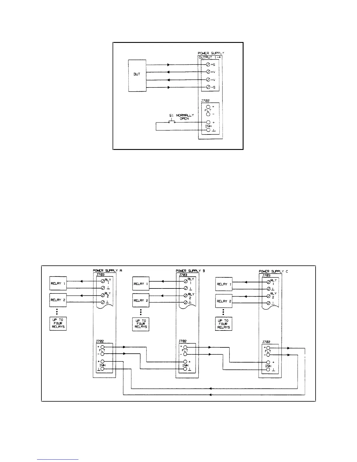
Figure 4. INH Example
FLT/INH/RLY Example with Multiple Supplies
The setup in Figure 5 chains the FLT output of one supply to the INH input of the next supply. A fault
condition in any of the supplies causes all of the supplies to be disabled without computer involvement or
external circuitry. With four external relays connected to the RLY controls, the fault opens all externally
connected relays in addition to disabling the outputs.
The computer can be made aware of a fault via a service request (SRQ). Sending FAULT? and then RIRST,
restores the output of the supplies to their programmed values before the FLT circuit was tripped. Sending CLR
initializes the supplies to their power-on state (See Table 5-3 in Operating Manual). Note that the on/off state of
the outputs and RLY controls is determined by the DCPON command.
Figure 5. FLT/INH/RLY Example

Other manuals for Agilent Technologies 6624A

Related product manuals