EasyManua.ls Logo

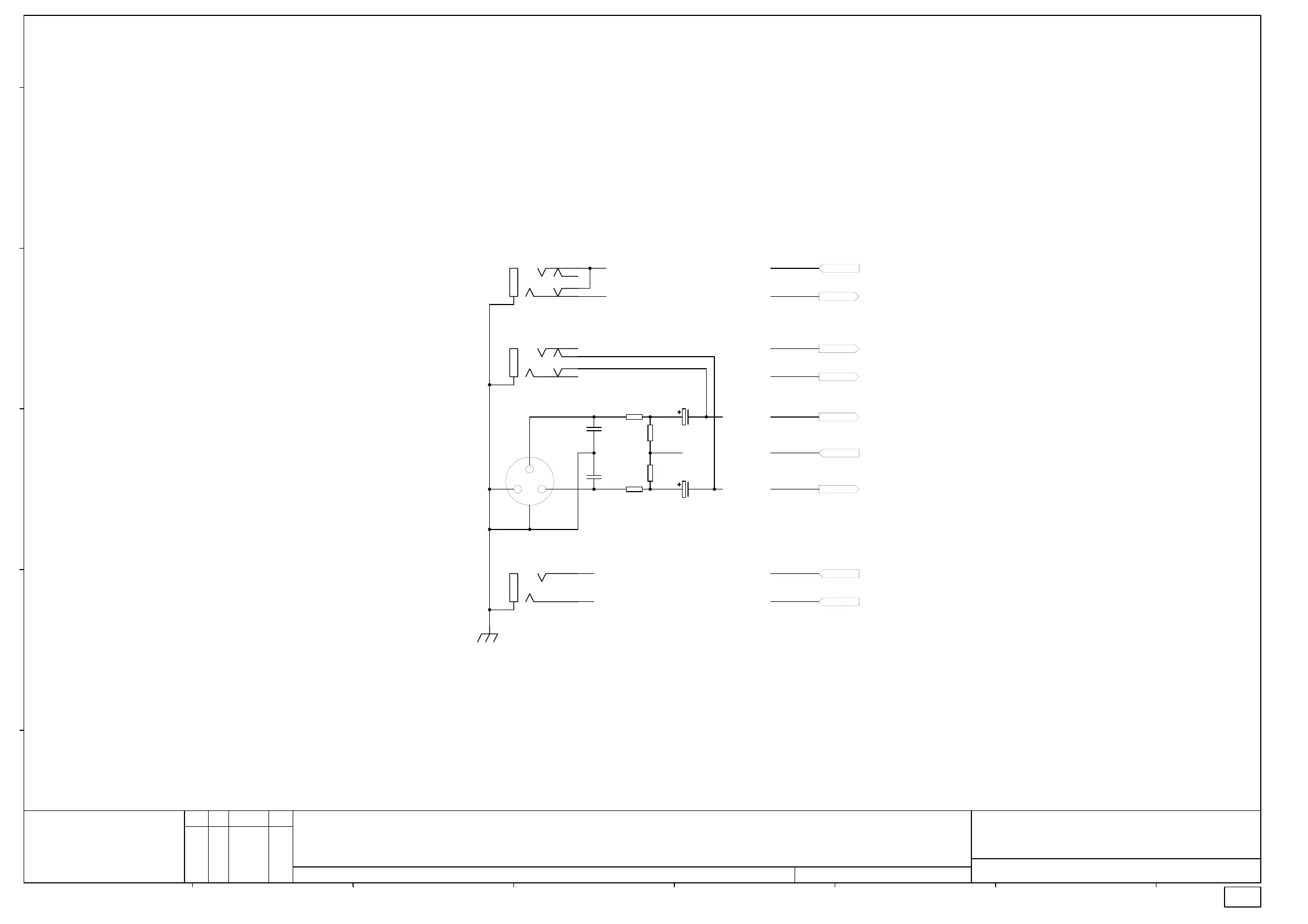
ALLEN & HEATH 14:4:2 MixWizard WZ3 - Connector PCB Schematic Details (Cont. 2); Connector CN100, CN101, CN102 Pinouts; Circuitry for Mic and Line Signals

ALLEN & HEATH 14:4:2 MixWizard WZ3
78 pages
Print Icon
To Next Page IconTo Next Page
To Next Page IconTo Next Page
To Previous Page IconTo Previous Page
To Previous Page IconTo Previous Page
Loading...
Kernick Industrial Estate,
Penryn, Cornwall,
England. TR10 9LU
+44 (0)8707 556250
+44 (0)8707 556251
1
WZ³14:4:2 CONNECTOR
C5399 3 14
PAGE:
TITLE:
DRG No: ISSUE: SHEET: OF
ISSUE BY DATE
FILE: C5399_1 CH2.Sch 16:55:33 5-Nov-2004
ALLEN&HEATH
Tel:
Fax:
PRINTED:
ABCDEFGH
a
b
c
d
e
CHK
BY
3
1 2
0
CN103_1
XLR NC3FAV20
T
R
CN102_1
JACK V3M
T
R
CN101_1
JACK V5M
C103_1
47/63
C102_1
47/63
R100_1
6K8 1%
R101_1
6K8 1%
LINE+
LINE-
MIC+
MIC-
+48V_SW
DIR_OUT+
DIR_OUT-
T
R
CN100_1
JACK V5M
INSEND
INSRET
L100_1
TCW
L101_1
TCW
C100_1
15P/DISK
C101_1
15P/DISK
MIC-
+48V_SW
MIC+
DIR_OUT+
DIR_OUT-
LINE-
LINE+
INSRET
INSEND
LINE+
LINE-
MIC+
MIC-
+48V_SW
DIR_OUT+
DIR_OUT-
INSEND
INSRET
A AAT
CH2 CONNS
26-09-03 XXX
1 AAT XXX28-01-04
003-209 iss.1

Related product manuals