EasyManua.ls Logo

Allen-Bradley 1734-AENTRK - Wire the Adapter

Allen-Bradley 1734-AENTRK
24 pages
Print Icon
To Next Page IconTo Next Page
To Next Page IconTo Next Page
To Previous Page IconTo Previous Page
To Previous Page IconTo Previous Page
Loading...
14 POINT I/O Dual Port EtherNet/IP Adapter
Publication 1734-IN041F-EN-P - May 2019
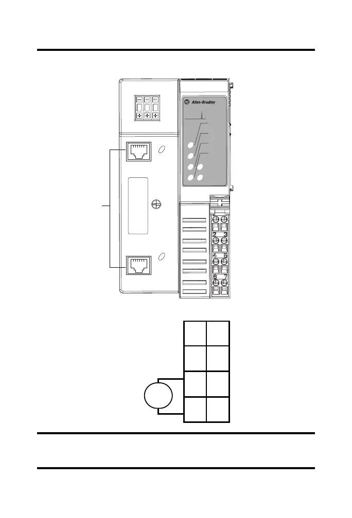
Wire the Adapter
IMPORTANT
Do not connect 120/240V AC power to this supply. This DC supply will be
connected to the internal power bus.
02
0
1734-AENTR
Module
Status
Network
Activity
Network
Status
Point Bus
Status
System
Power
Field
Power
POINT I O
Link 1
Activity/
Status
Link 2
Activity/
Status
IP ADDRESS
Chas Gnd
C
V
NC
Ethernet
RJ-45
connectors
44848
NC
V
NC
Chas
Gnd
V
0
4
2
6
Chas
Gnd
1
5
3
7
V DC
CC
NC = No Connection
Chas GND = Chassis Ground
C = Common
V = Supply

Related product manuals