EasyManua.ls Logo

Allen-Bradley 1734-AENTRK - Interpret Status Indicators

Allen-Bradley 1734-AENTRK
24 pages
Print Icon
To Next Page IconTo Next Page
To Next Page IconTo Next Page
To Previous Page IconTo Previous Page
To Previous Page IconTo Previous Page
Loading...
16 POINT I/O Dual Port EtherNet/IP Adapter
Publication 1734-IN041F-EN-P - May 2019
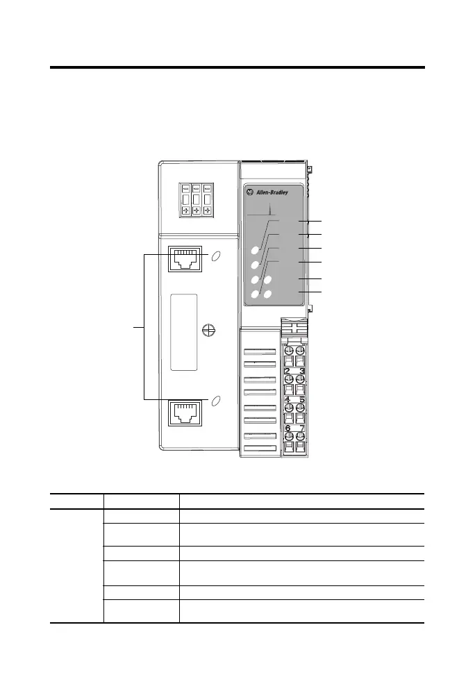
Interpret Status Indicators
Refer to the following diagram and table for information on how to interpret the
status indicators.
POINT I/O Dual Port EtherNet/IP Adapter, Series C
Indicator Status for Modules
Indicator Status Description
Module
status
Off No power applied to device
Flashing green Device needs commissioning due to missing, incomplete, or
incorrect configuration.
Solid green Device operating normally
Flashing red Recoverable fault.
Complete firmware update, verify address switches.
Solid red Unrecoverable fault, may require device replacement
Flashing
red/green
Module self-test
44848
02
0
1734-AENTR
Module
Status
Network
Activity
Network
Status
Point Bus
Status
System
Power
Field
Power
POINT I O
Link 1
Activity/
Status
Link 2
Activity/
Status
IP ADDRESS
Network status
POINTBus status
System power
Field power
Module status
Network activity
Link 1/2
activity/
status

Related product manuals