EasyManua.ls Logo

Allen-Bradley ControlLogix 1756-EN2F - Page 6

Allen-Bradley ControlLogix 1756-EN2F
28 pages
Print Icon
To Next Page IconTo Next Page
To Next Page IconTo Next Page
To Previous Page IconTo Previous Page
To Previous Page IconTo Previous Page
Loading...
6 ControlLogix EtherNet/IP Module
Rockwell Automation Publication 1756-IN606B-EN-P - April 2010
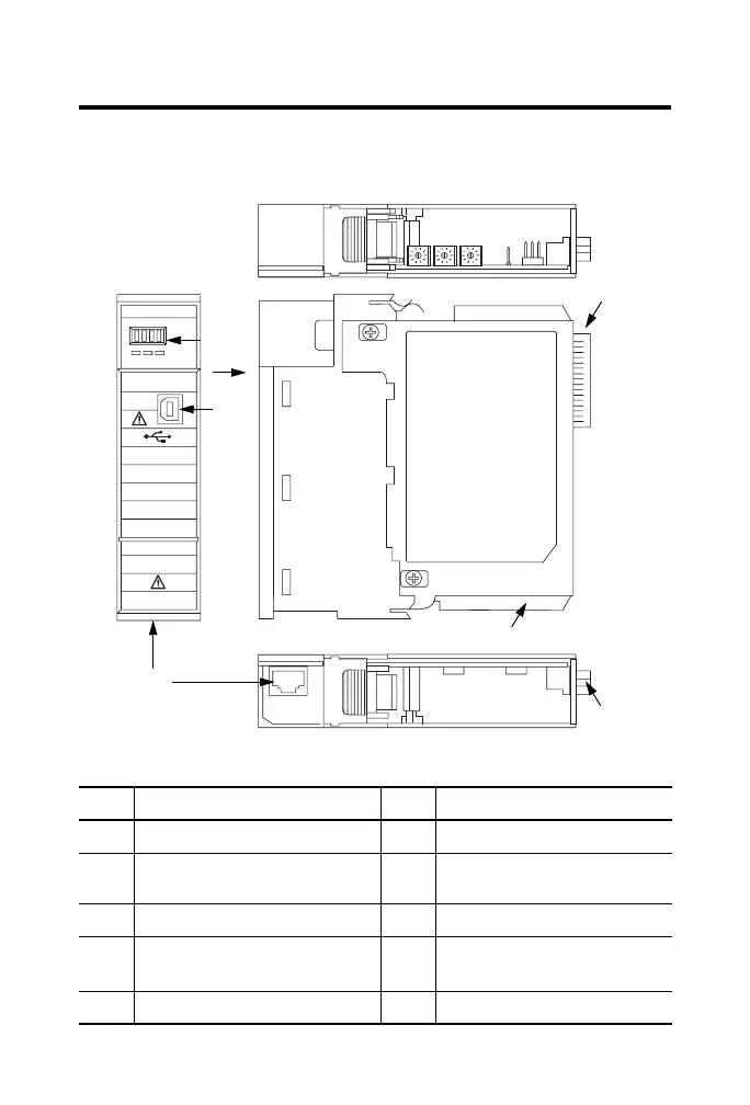
About the Module
Use this figure to identify the external features of the module.
Item Description Item Description
1 Top view 6 Front of module
2 Backplane connector 7 RJ45 cable connector (optical port;
on underside of module)
3 Side view 8 USB port
4 MAC ID label
(on opposite side of circuit board)
9 Front panel
5 Bottom view 10 Front view
31587-M
LINK NET OK
10/100 BASE T
EtherNet/IP
TM
4
10
3
1
2
2
8
5
6
7
9

Related product manuals