EasyManua.ls Logo

Allen-Bradley PowerFlex 520 Series - Page 178

Allen-Bradley PowerFlex 520 Series
244 pages
Print Icon
To Next Page IconTo Next Page
To Next Page IconTo Next Page
To Previous Page IconTo Previous Page
To Previous Page IconTo Previous Page
Loading...
178 Rockwell Automation Publication 520-UM001G-EN-E - September 2014
Appendix B Accessories and Dimensions
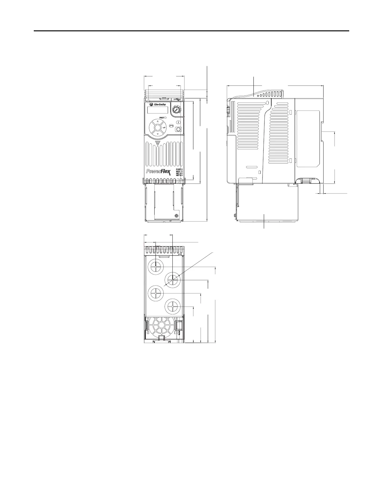
IP 30/NEMA 1/UL Type 1 – Frame A
Esc
Sel
72.0 (2.83)
172.0 (6.77)
6.0 (0.24)
51.1 (2.01)
21.0 (0.82)
57.5 (2.26)
15.0 (0.59)
219.0 (8.62)
92.7 (3.65)
140.0 (5.51)
135.4 (5.33)
111.9 (4.41)
88.2 (3.47)
64.7 (2.55)
152.0 (5.98)
ø21.5 (ø0.85)
Dimensions are in millimeters and (inches)
IP 30/NEMA 1/ UL Type 1 conduit box
IP 30/NEMA 1/ UL Type 1 top panel

Table of Contents

Related product manuals