EasyManua.ls Logo

Allen-Bradley PowerFlex 755TL - Setting a Fault Action

Allen-Bradley PowerFlex 755TL
192 pages
Print Icon
To Next Page IconTo Next Page
To Next Page IconTo Next Page
To Previous Page IconTo Previous Page
To Previous Page IconTo Previous Page
Loading...
44 Rockwell Automation Publication 750-IN100B-EN-P - July 2017
Chapter 3 Prepare for Installation
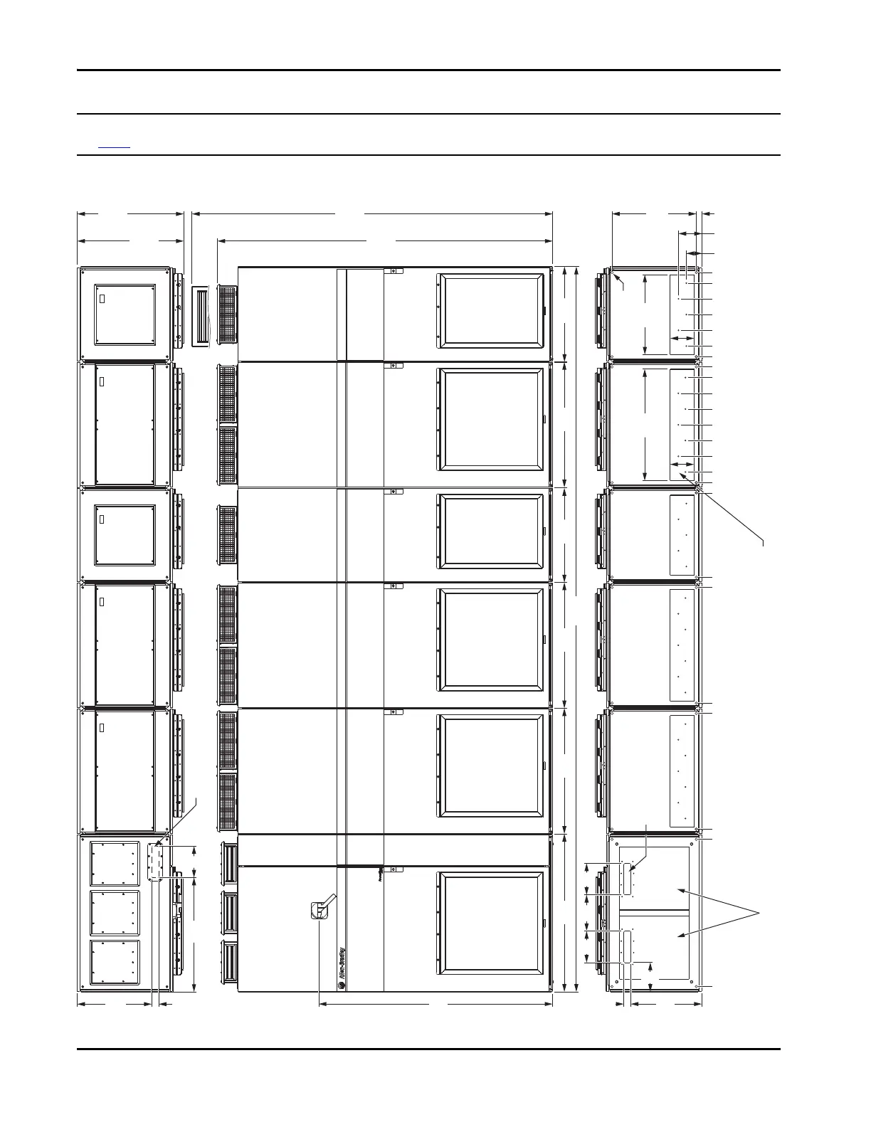
Frame 12 Drives Top, Front, and Bottom Views - Dimensions are mm (in.)
See page 45
for optional entry and exit wire bay dimensions.
4606
(181.3)
1000
(39.4)
800
(31.5)
0 (0)
935 (36.8)
450
(17.7)
45
(1.8)
200
(7.9)
200
(7.9)
230
(9.1)
186
(7.3)
1481
(58.3)
200
(7.9)
726
(28.6)
473
(18.6)
45
(1.8)
709
(27.9)
153
(6.0)
600
(23.6)
800
(31.5)
1800 (70.9)
1735 (68.3)
1000 (39.4)
800
(31.5)
600
(23.6)
509
(20.0)
153
(6.0)
IP21, UL Type 1
2132
(83.9)
IP54, UL Type 12
2291
(90.2)
IP21, UL Type 1
676
(26.6)
IP54, UL Type 12
721
(28.4)
3468 (136.5)
3568 (140.5)
3668 (144.4)
3768 (148.3)
3868 (152.3)
3268 (128.7)
3368 (132.6)
3135 (123.4)
2600 (102.4)
2535 (99.8)
3935 (154.9)
3200 (126.0)
4535 (178.5)
4000 (157.5)
4268 (168.0)
4368 (172.0)
4468 (175.9)
4068 (160.2)
4168 (164.1)
36
(1.4)
150
(5.9)
105
(4.1)
535
(21.1)
Power BayInput Bay Power Bay Power Bay
Control Cables - Top Entry
Signal Cables - Top Entry
Power Bay Power Bay
Input Power Cables - Bottom Exit
(Plate is marked with recommended gland or conduit hole pattern.)
Input Power Cables - Bottom Entry
Mounting Holes

Table of Contents

Other manuals for Allen-Bradley PowerFlex 755TL

Related product manuals