EasyManua.ls Logo

Allen-Bradley PowerFlex 755TM - Fiber Optic Interface Board

Allen-Bradley PowerFlex 755TM
192 pages
Print Icon
To Next Page IconTo Next Page
To Next Page IconTo Next Page
To Previous Page IconTo Previous Page
To Previous Page IconTo Previous Page
Loading...
Rockwell Automation Publication 750-IN100B-EN-P - July 2017 143
I/O Wiring Chapter 6
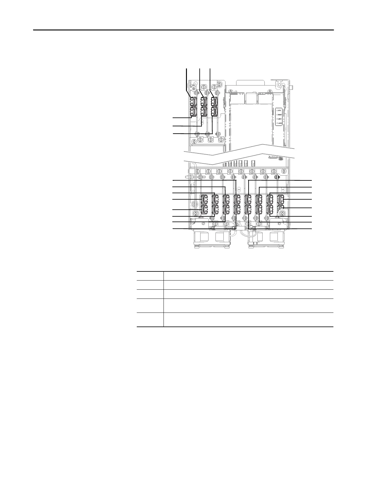
Fiber Optic Interface Board
The fiber-optic interface board holds the fiber transceiver circuit boards.
Table 22 - Fiber Transceiver Circuit Board Connections
Por t
N
a
m
e
D
e
s
c
r
i
pt
ion
ACP0 Fiber transceiver port for the fiber-optic connection from ACP on the AC precharge control board.
ACP1 TAM Fiber transceiver port for the fiber-optic connection from TAM on the torque accuracy module.
L0…L9 Fiber transceiver ports for the fiber-optic connections from CNTL on the power layer interface board
in power modules that are used as line side converters.
M0…M9 Fiber transceiver ports for the fiber-optic connections from CNTL on the power layer interface board
in power modules that are used as motor side inverters.

Table of Contents

Other manuals for Allen-Bradley PowerFlex 755TM

Related product manuals