EasyManua.ls Logo

Allen-Bradley PowerFlex 755TM - Page 40

Allen-Bradley PowerFlex 755TM
192 pages
Print Icon
To Next Page IconTo Next Page
To Next Page IconTo Next Page
To Previous Page IconTo Previous Page
To Previous Page IconTo Previous Page
Loading...
40 Rockwell Automation Publication 750-IN100B-EN-P - July 2017
Chapter 3 Prepare for Installation
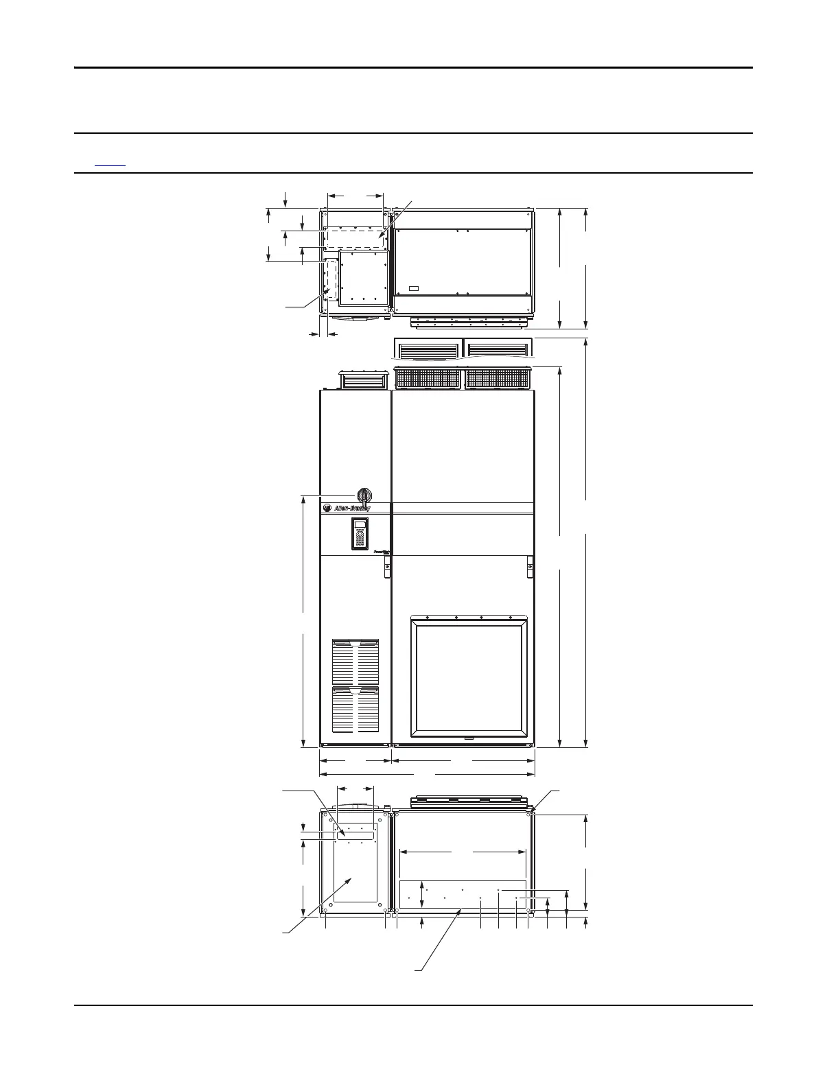
PowerFlex 755TL and 755TR Drives Approximate Dimensions
Frame 8 Drives Top, Front, and Bottom Views - Dimensions are mm (in.)
See page 45
for optional exit wire bay dimensions.
335 (13.2)
400 (15.7)
867.5 (34.2)
967.5 (38.1)
1135 (44.7)
1067.5 (42.0)
0 (0)
451
(17.8)
45
(1.8)
709
(27.9)
1206
(47.5)
400
(15.7)
800
(31.5)
49
(1.9)
153
(6.0)
36
(1.4)
150
(5.9)
105
(4.1)
535
(21.1)
1407
(55.4)
IP21, UL Type 1
2132
(83.9)
IP54, UL Type 12
2291
(90.2)
IP21, UL Type 1
676
(26.6)
IP54, UL Type 12
721
(28.4)
48
(1.9)
301
(11.9)
128
(5.0)
90
(3.5)
312
(12.3)
200
(7.9)
Input Power Cables - Top Entry
Signal Cables - Top Entry
Dimensions same as bottom.
Motor Cables - Bottom Exit
(Plate is marked with recommended gland or conduit hole pattern.)
Power Bay
Input Bay
Signal Cables - Bottom Entry
Input Power Cables - Bottom Entry
Mounting Holes

Table of Contents

Other manuals for Allen-Bradley PowerFlex 755TM

Related product manuals