EasyManua.ls Logo

Allen-Bradley PowerFlex 755TM - Page 48

Allen-Bradley PowerFlex 755TM
192 pages
Print Icon
To Next Page IconTo Next Page
To Next Page IconTo Next Page
To Previous Page IconTo Previous Page
To Previous Page IconTo Previous Page
Loading...
48 Rockwell Automation Publication 750-IN100B-EN-P - July 2017
Chapter 3 Prepare for Installation
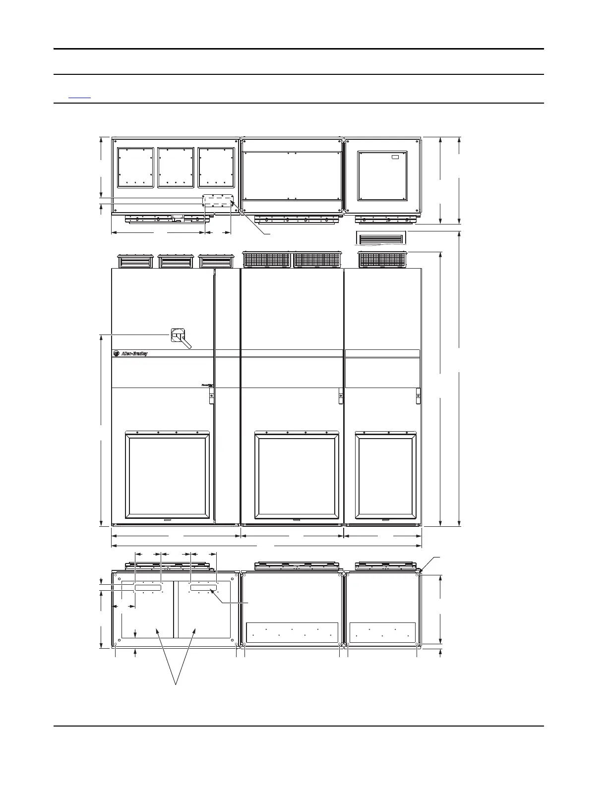
Frame 10 Bus Supplies Top, Front, and Bottom Views - Dimensions are mm (in.)
See page 51 for optional entry wire bay dimensions.
83
(3.3)
2335 (91.9)
1800 (70.9)
600
(23.6)
36
(1.4)
535
(21.1)
IP21, UL Type 1
2132
(83.9)
IP54, UL Type 12
2291
(90.2)
IP21, UL Type 1
676
(26.6)
IP54, UL Type 12
721
(28.4)
2406
(94.7)
1000
(39.4)
800
(31.5)
0 (0)
1735 (68.3)
1000 (39.4)
935 (36.8)
450
(17.7)
45
(1.8)
200
(7.9)
200
(7.9)
230
(9.1)
186
(7.3)
1481
(58.3)
200
(7.9)
726
(28.6)
473
(18.6)
45
(1.8)
Signal Cables - Top Entry
Mounting Holes
Input Power Cables - Bottom Entry
Signal Cables - Bottom Entry
Power Bay
Power BayInput Bay

Table of Contents

Other manuals for Allen-Bradley PowerFlex 755TM

Related product manuals