EasyManua.ls Logo

Allied A95UH1E - Unit Dimensions

Allied A95UH1E
59 pages
Print Icon
To Next Page IconTo Next Page
To Next Page IconTo Next Page
To Previous Page IconTo Previous Page
To Previous Page IconTo Previous Page
Loading...
507276-03Page 2 of 59 Issue 1621
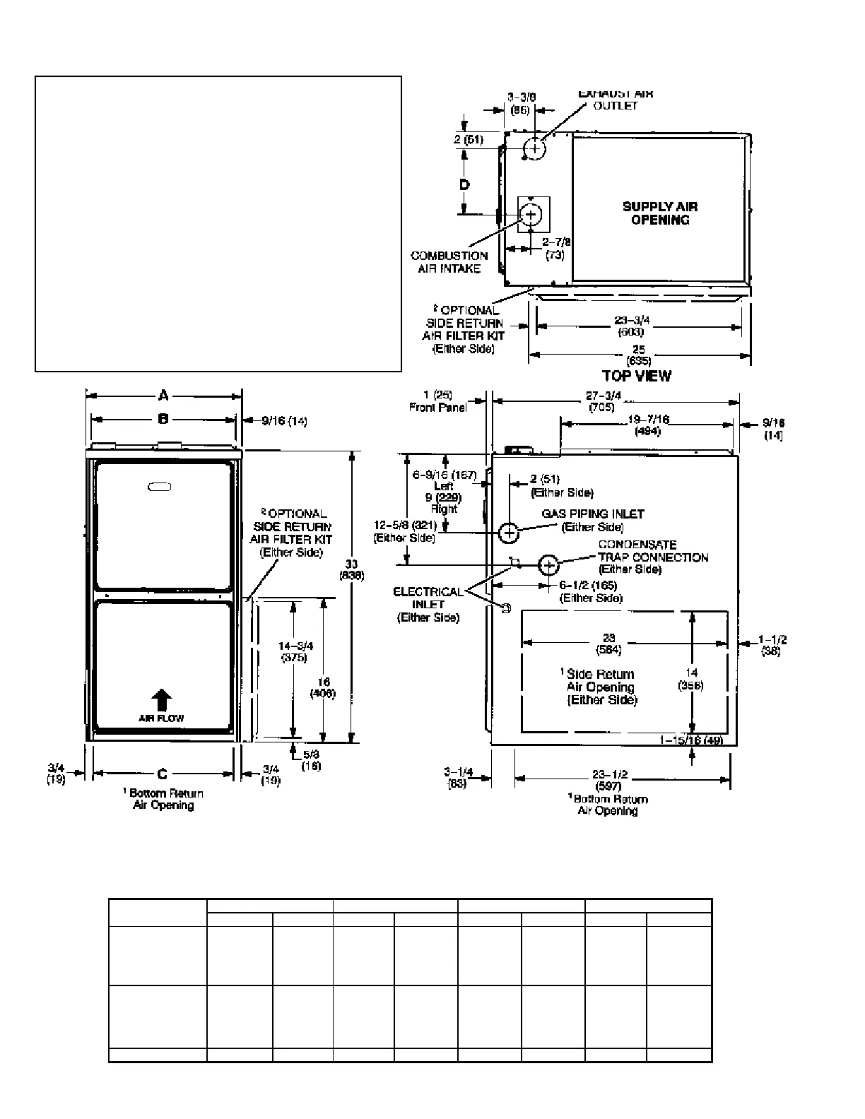
A95UH1E & 95G1UHE Unit Dimensions - inches (mm)
1 NOTE - C20 and D20 (5 Ton) size units installed in upow
applications that require air volumes of 1800 cfm (850 L/s) or
greater must have one of the following:
1. Single side return air with transition, to accommodate
20 x 25 x 1 in. (508 x 635 x 25 mm) cleanable air lter.
(Required to maintain proper air velocity.)
2. Single side return air with optional “RAB” Return Air
Base.
3. Bottom return air.
4. Return air from both sides.
5. Bottom and one side return air.
See “Blower Performance Tables” for additional information.
2 Optional External Side Return Air Filter kit is not for use with
optional Return Air Base.
* Consider sizing requirements for optional IAQ equipment before
cutting side return opening.
FRONT VIEW SIDE VIEW
Model
A95UH1E & 95G1UHE
A B C D
in. mm in. mm in. mm in. mm
030-08
045-08
045-12
070-08
070-12
17-1/2 446 16-3/8 416 16 406 7-5/8 194
090-12
090-16
110-12
110-16
110-20
21 533 19-7/8 505 19-1/2 495 9-3/8 238
135-20 24-1/2 622 23-3/8 594 23 584 11-1/8 283

Other manuals for Allied A95UH1E

Related product manuals